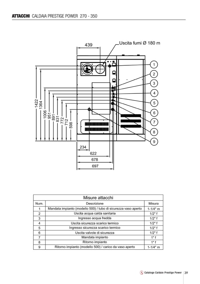
ATTACCHI CALDAIA PRESTIGE POWER 270 - 350

Catalogo Caldaie Prestige Power 39