B

R

O

M

P

T

O

N

DETTAGLIO ILLUMINAZIONE

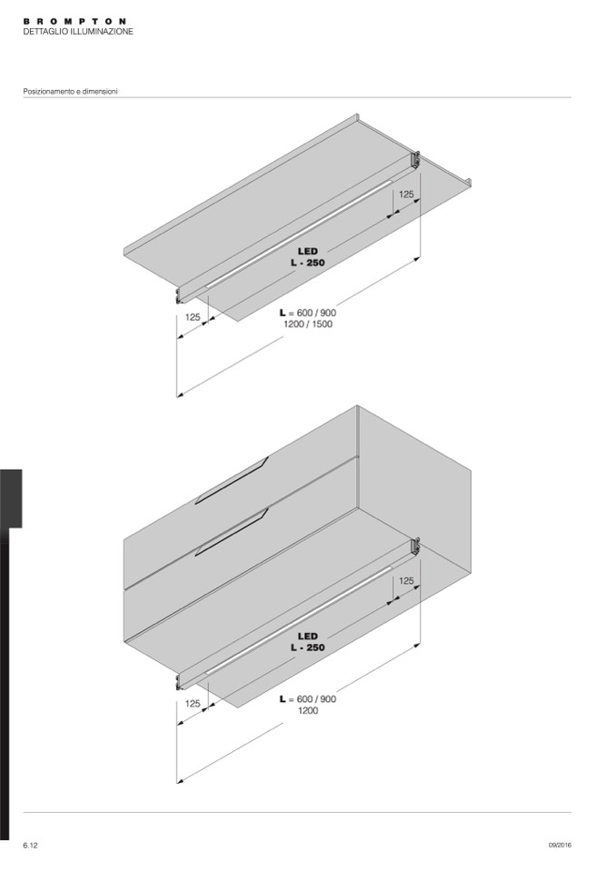
Posizionamento e dimensioni

6.12

09/2016

125

LED

L - 250

L = 600 / 900

1200 / 1500

125

LED

L - 250

L = 600 / 900

1200

125

125