A

N

T

H

E

A

DETTAGLI TECNICI

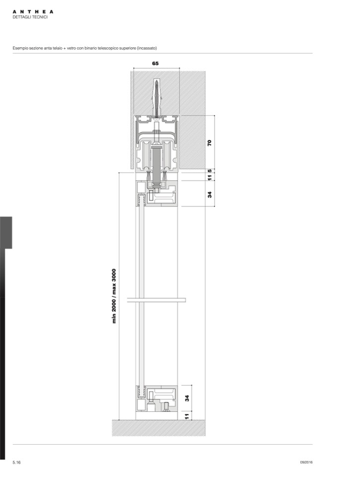
Esempio sezione anta telaio + vetro con binario telescopico superiore (incassato)

65

1

1

3

4

m

i

n

2

0

0

0

/

m

a

x

3

0

0

0

3

4

1

1

5

7

0

5.16

09/2016