A

N

T

H

E

A

SEZIONI

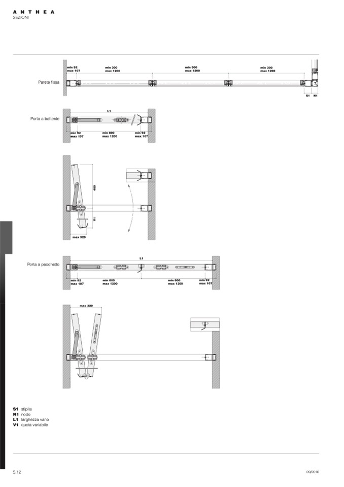
Parete fissa

Porta a battente

Porta a pacchetto

S1 stipite

N1 nodo

L1 larghezzavano

V1 quota variabile

5.12

09/2016

min 92

max 107

min 92

max 107

min 300

max 1200

L1

min 800

max 1200

min 300

max 1200

min 300

max 1200

max 320

min 92

max 107

max 320

L1

min 800

max 1200

min 800

max 1200

min 92

max 107

min 92

max 107

S1 N1

V

1

4

0

0