G

R

E

E

N

E

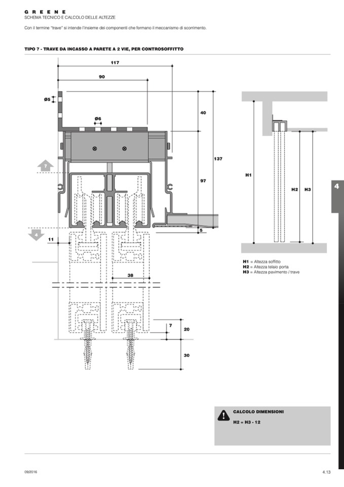
SCHEMA TECNICO E CALCOLO DELLE ALTEZZE

Con il termine “trave” si intende l’insieme dei componenti che formano il meccanismo di scorrimento.

TIPO 7 - TRAVE DA INCASSO A PARETE A 2 VIE, PER CONTROSOFFITTO

117

Ø6

90

40

97

Ø5

7

4

137

5

H1

11

H2

H3

H1 = Altezza soffitto

H2 = Altezza telaio porta

H3 = Altezza pavimento / trave

38

7

20

30

CALCOLO DIMENSIONI

H2 = H3 - 12

09/2016

4.13

4