SCHEMI DI IMPIANTO TIME POWER CASCATA

E

X

T

G

r

e

e

n

H

e

a

t

i

n

g

T

e

c

h

n

o

l

o

g

y

L

e

g

e

n

d

a

5

2

3

6

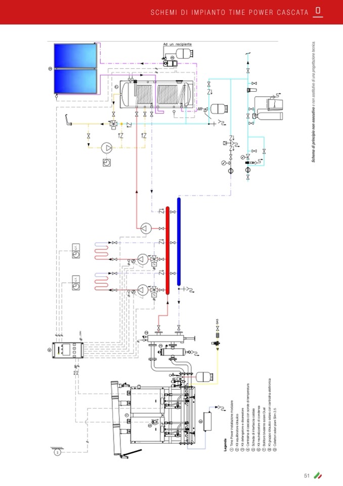
1

T

i

m

e

P

o

w

e

r

i

n

s

t

a

l

l

a

z

i

o

n

e

m

o

d

u

l

a

r

e

2

K

i

t

e

q

u

i

l

i

b

r

a

t

o

r

e

i

d

r

a

u

l

i

c

o

3

K

i

t

d

e

f

a

n

g

a

t

o

r

e

e

d

i

s

a

r

e

a

t

o

r

e

4

C

e

n

t

r

a

l

i

n

a

d

i

c

a

s

c

a

t

a

c

o

n

s

o

n

d

e

d

i

t

e

m

p

e

r

a

t

u

r

a

5

S

c

h

e

d

a

d

i

i

n

t

e

r

f

a

c

c

i

a

c

a

l

d

a

i

a

1

1

1

4

3

2

1

m

3

1

6

K

i

t

n

e

u

t

r

a

l

i

z

z

a

t

o

r

e

d

i

c

o

n

d

e

n

s

a

7

B

o

l

l

i

t

o

r

e

b

i

v

a

l

e

n

t

e

s

o

l

a

r

e

D

u

a

l

8

K

t

g

r

u

p

p

o

i

d

r

a

u

l

i

c

o

s

o

l

a

r

e

c

o

n

c

e

n

t

r

a

l

i

n

a

e

l

e

t

t

r

o

n

i

c

a

9

C

o

l

l

e

t

t

o

r

i

s

o

l

a

r

i

p

i

a

n

i

S

l

i

m

2

.

5

S

e

r

b

a

t

o

i

o

s

a

l

a

m

o

i

a

S

c

h

e

m

a

d

i

p

r

i

n

c

i

p

i

o

n

o

n

e

s

e

c

u

t

i

v

o

e

n

o

n

s

o

s

t

i

t

u

t

i

v

o

d

i

u

n

a

p

r

o

g

e

t

t

a

z

i

o

n

e

t

e

c

n

i

c

a

.

B

U

S

B

U

S

+

-

E

S

C

O

K

C

.

T

.

C

.

T

.

4

9

!

2

3

0

V

G

A

S

1

2

3

4

1

1

1

m

3

S

c

h

e

m

a

d

i

p

r

i

n

c

i

p

i

o

n

o

n

e

s

e

c

u

t

i

v

o

e

n

o

n

s

o

s

t

i

t

u

t

i

v

o

d

i

u

n

a

p

r

o

g

e

t

t

a

z

i

o

n

e

t

e

c

n

i

c

a

.

7

8

51