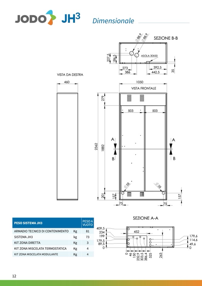
PESO SISTEMA JH3

PESO A

VUOTO

409,5

409,5

234

SEZIONE A-A

ARMADIO TECNICO DI CONTENIMENTO Kg

SISTEMA JH3

kg

KIT ZONA DIRETTA

Kg

KIT ZONA MISCELATA TERMOSTATICA

Kg

KIT ZONA MISCELATA MODULANTE

Kg

81

73 234 199

179,6

114,6

12

VISTA DA DESTRA

VISTA DA DESTRA

273

386

392,5

442,5

460

1050

460

1050

VISTA FRONTALE

3

199

179,5

179,6

Dimensionale

A

A

273

386

392,5

442,5

503

503

SEZIONE B-B

SEZIONE B-B

ASOLA 30X50

ASOLA 30X50

VISTA FRONTALE

503

503

A

B

B

B

B

5

8

5

8

58

58

75

75

SEZIONE A-A

452

75

75

452

0

0

89,5

489,5 0

49,6

4

179,5

A

114,6

49,6

0

0

4

6

0

1

5

7

2

2

7

,

5

1

8

6

,

5

1

5

0

4

6

2

3

2

,

9

1

5

0

3

0

3

,

5

3

8

6

,

4

2

3

2

,

9

3

0

3

,

5

5

2

5

3

8

6

,

4

5

2

5

2

6

3

2

6

3

2

3

6

2

2

0

1

1

8

8

2

2

3

6

2

2

7

9

1

5

7

2

0

1

1

8

8

2

2

7

9

2

2

7

,

5

1

8

6

,

5

1

5

7

3

5

1

5

7

3

5