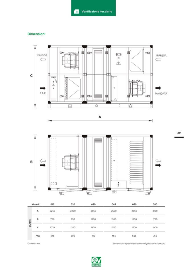
Dimensioni

ESPULSIONE

P.A.E.

RIPRESA

MANDATA

C

B

+

Modelli

010

A

2250

B

750

C

1070

*Kg

245

Quote in mm

020

030

2250

2550

950

1300

1320

1420

300

410

045

060

080

2550

2850

3100

1300

1500

1750

1520

1700

1900

455

565

760

* Dimensioni e pesi riferiti alla configurazione standard

B Ventilazione terziario

A

L

+

29

Q

U

O

T

E

W

H