Mounting and connection measurements

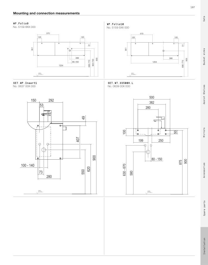
WP.Folio9

No. 5159 8XX 000

WP.Folio10

No. 5159 5XX 000

SET.WP.Insert1

No. 0637 00X 000

SET.WT.XS500H.L

No. 0639 00X 000

120

FFL

120

FFL

FFL

570

570

120

120

1254

395

80 -150

395

FFL

1254

197

I

n

s

t

a

l

l

a

t

i

o

n

S

p

a

r

e

p

a

r

t

s

A

c

c

e

s

s

o

r

i

e

s

M

i

r

r

o

r

s

A

s

s

i

s

t

S

h

e

l

v

e

s

B

u

c

k

e

t

s

i

n

k

s

S

e

t

s

6

8

0

-

7

7

0

6

2

0

-

7

3

0

3

1

6

8

0

-

7

7

0

9

0

0

3

1

9

0

0

3

5

1

3

5

1