TABELLA DATI TECNICI - ARMAFIX ULTIMA

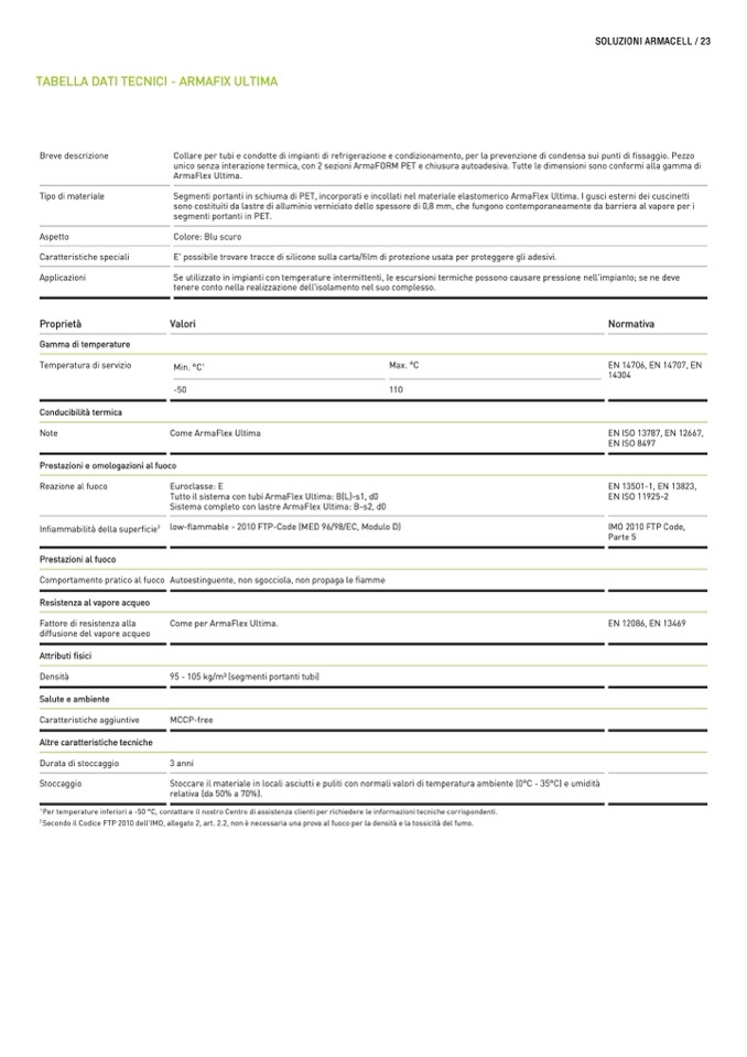
Breve descrizione

Tipo di materiale

Aspetto

Caratteristiche speciali

Applicazioni

Proprietà

Gamma di temperature

Temperatura di servizio

Conducibilità termica

Note

Collare per tubi e condotte di impianti di refrigerazione e condizionamento, per la prevenzione di condensa sui punti di fissaggio. Pezzo

unico senza interazione termica, con 2 sezioni ArmaFORM PET e chiusura autoadesiva. Tutte le dimensioni sono conformi alla gamma di

ArmaFlex Ultima.

Segmenti portanti in schiuma di PET, incorporati e incollati nel materiale elastomerico ArmaFlex Ultima. I gusci esterni dei cuscinetti

sono costituiti da lastre di alluminio verniciato dello spessore di 0,8 mm, che fungono contemporaneamente da barriera al vapore per i

segmenti portanti in PET.

Colore: Blu scuro

E' possibile trovare tracce di silicone sulla carta/film di protezione usata per proteggere gli adesivi.

Se utilizzato in impianti con temperature intermittenti, le escursioni termiche possono causare pressione nell'impianto; se ne deve

tenere conto nella realizzazione dell'isolamento nel suo complesso.

SOLUZIONI ARMACELL / 23

Valori

Min. °C

1

-50

Max. °C

110

Normativa

EN 14706, EN 14707, EN

14304

EN ISO 13787, EN 12667,

EN ISO 8497

EN 13501-1, EN 13823,

EN ISO 11925-2

IMO 2010 FTP Code,

Parte 5

EN 12086, EN 13469

Come ArmaFlex Ultima

Prestazioni e omologazioni al fuoco

Reazione al fuoco

Infiammabilità della superficie

2

Prestazioni al fuoco

Comportamentopraticoalfuoco

Resistenza al vapore acqueo

Fattore di resistenza alla

diffusione del vapore acqueo

Attributi fisici

Densità

Salute e ambiente

Caratteristiche aggiuntive

Altre caratteristiche tecniche

Durata di stoccaggio

Stoccaggio

Euroclasse: E

Tutto il sistema con tubi ArmaFlex Ultima: B(L)-s1, d0

Sistema completo con lastre ArmaFlex Ultima: B-s2, d0

low-flammable - 2010 FTP-Code (MED 96/98/EC, Modulo D)

Autoestinguente,nonsgocciola,nonpropagalefiamme

Come per ArmaFlex Ultima.

95 - 105 kg/m3 (segmenti portanti tubi)

MCCP-free

3 anni

Stoccare il materiale in locali asciutti e puliti con normali valori di temperatura ambiente (0°C - 35°C) e umidità

relativa (da 50% a 70%).

1

Per temperature inferiori a -50 °C, contattare il nostro Centro di assistenza clienti per richiedere le informazioni tecniche corrispondenti.

2

Secondo il Codice FTP 2010 dell'IMO, allegato 2, art. 2.2, non è necessaria una prova al fuoco per la densità e la tossicità del fumo.