CALDAIE AD ACQUA SURRISCALDATA | SUPERHEATED WATER BOILERS

PREX Q ASL

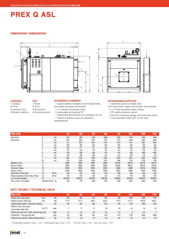
DIMENSIONI / DIMENSIONS

LEGENDA

1 Caldaia

2 Porta

3 Camera fumo

4 Quadro elettrico

Dimensioni

Dimensions

KEY

1 Boiler

2 Door

3 Smokebox

4 Electrical panel

B

mm

C

mm

D

mm

E

mm

F

mm

G

mm

H

mm

I

mm

M

mm

T1

Ø mm

1015

911

405

257

153

545

420

1425

970

DN65

DN65

DN40

DN20

220

150

250/320

550

177,8

146

7

1,2

312

4,9

1264

1031

405

277

153

630

495

1595

1095

DN65

DN65

DN40

DN20

220

240

250/320

750

311,2

265

17

3,3

492

4,9

1515

1776

1776

2018

1031

1181

1331

1511

405

405

405

405

277

252

255

284

153

153

210

210

630

725

815

900

485

570

615

670

1945

2185

2245

2515

1095

1255

1390

1570

DN65

DN80

DN100

DN125

DN65

DN80

DN100

DN125

DN50

DN50

DN80

DN80

DN20

DN20

DN20

DN20

220

250

350

400

240

210

270

270

250/320

290/360

320/390

320/390

880

1100

1360

2050

455,6

622,3

777,9

1111,3

295

555

745

1220

31

28

18

33

4,4

4,8

4,5

6

652

979

1179

1720

4,9

4,9

4,9

4,9

2320

2520

1661

1661

405

405

290

290

210

210

1000

1000

743

743

2825

3025

1720

1720

DN150

DN150

DN150

DN150

DN100

DN100

DN40

DN40

450

450

350

350

350/420

350/420

2530

2720

1555,8

1933,7

1640

1760

55

45

6,5

7

2426

3099

ACCESSORI A CORREDO

- 1 quadro elettrico completo di: termostato limite,

termostato sicurezza, termometro

- 1 o 2 valvole di sicurezza a leva

- 1 pressostato di sicurezza RT

- 1 manometro tipo Bourdon con rubinetto a tre vie

- 1 valvola di scarico a leva con valvola di

intercettazione

PREX Q ASL

160

280

410

560

700

1000

1400

1740

ACCESSORIES SUPPLIED

- 1 electrical panel complete with:

limit thermostat, safety thermostat, thermometer

- 1 or 2 lever-operated safety valves

- 1 RT safety pressure switch

- 1 Bourdon pressure gauge with three-way valve

- 1 lever-operated valve with on-off valve

a

mm

810

950

950

1080

1260

1450

1560

1560

Mandata / Flow

Ritorno / Return

Sicurezze / Safety

Scarico / Drain

Uscita fumo / Flue outlet

Attacco bruciatore / Burner attac. fitting

T6

Lg. min/max boccaglio

T6

Peso a secco / Dry weight

standard 4,9 bar kg

T2

T3

T4

T5

Ø mm

DATI TECNICI / TECHNICAL DATA

Potenza focolare / Heat input

max

kW

Capacità totale caldaia / Total boiler capacity

dm

3

PREX Q ASL

160

280

410

560

700

1000

1400

1740

Potenza utile / Heat output

max

kW

160

280

410

560

700

1000

1480

1740

Perdite di carico lato acqua

Loss pressure water side

Perdite carico lato fumi / Press. drop flue gas side

mbar

Portata fumi* / Flue gas flow-rate*

kg/h

Pressione max esercizio / Max working pressure

bar

∆t 15°C

mbar

* Combustibile gasolio: CO2 = 13% - combustibile gas: CO2 = 10%

* Oil fuel: CO2 = 13% - Gas fuel: CO2 = 10%

4,9

4,9

64