CALDAIE AD ACQUA CALDA | HOT WATER BOILERS

RSW N 92÷1890

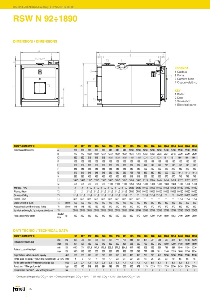
DIMENSIONI / DIMENSIONS

PREXTHERM RSW N

Dimensioni / Dimensions

Mandata / Flow

Ritorno / Return

Sicurezze / Safety

Scarico / Drain

Uscita fumo / flue outlet

Attacco bruciatore / Burner attac. fitting

lg. min/max boccaglio / lg. min/max tube burner

Peso a secco / Dry weight

92

A

800

107 152 190 240 300

350 401

940 940

1522 1522

1035 1035

525 600

1050 1050

1534 1794

1185 1185

720 820

1250 1250

1783 1783

1334 1334

940 1060

1250 1430

2023 2027

1334 1514

1250 1480

1450 1530

2018 2320

1511 1661

1600 1890

1530 1530

2320 2520

1661 1661

LEGENDA

1 Caldaia

2 Porta

3 Camera fumo

4 Quadro elettrico

KEY

1 Boiler

2 Door

3 Smokebox

4 Electrical panel

B

C

D

E

F

G

H

I

M

T1

T2

T3

T4

T5

T6

T6

standard

kg

6 bar

772

860

162

167

148

510

385

800

772

860

162

167

148

510

385

800 800 800 940

1022 1022 1272 1272

915 915 915 1035

162 162 162 162 162 162 162 162 162 162 162 162 165 165 165 165

167 167 167 187 187 187 182 182 199 199 199 208 190 190 190 190

148 148 148 148 148 148 143 143 222 222 222 219 212 212 212 212

545 545 545 630 630 630 725 725 830 830 830 900 900 1013 1013 1013

425 425 425 465 465 455 518 518 565 565 565 670 670 743 743 743

1087 1087 1337 1337 1587 1607 1857 1857 1859 1862 2119 2205 2445 2454 2420 2722 2722 2722

925 925 980 980 980 1100 1100 1100 1250 1250 1400 1400 1400 1580 1580 1730 1730 1730

2”

2” 2”-1/2 2”-1/2 2”-1/2 2”-1/2 2”-1/2 2”-1/2 DN80 DN80 DN100 DN100 DN100 DN125 DN125 DN150 DN150 DN150

2”

2” 2”-1/2 2”-1/2 2”-1/2 2”-1/2 2”-1/2 2”-1/2 DN80 DN80 DN100 DN100 DN100 DN125 DN125 DN150 DN150 DN150

1”-1/2 1”-1/2 1”-1/2 1”-1/2 1”-1/2 1”-1/2 1”-1/2 1”-1/2 2”

2” 2”-1/2 2”-1/2 2”-1/2 3”

3” DN100 DN100 DN100

3/4” 3/4” 3/4” 3/4” 3/4” 3/4” 3/4” 3/4” 3/4” 3/4”

1”

1”

1”

1”

1” 1”-1/2 1”-1/2 1”-1/2

Ømm 200 200 220 220 220 220 220 220 250 250 340 340 340 400 400 450 450 450

Ømm 145 145 150 150 150 240 240 240 210 210 270 270 270 270 270 350 350 350

250/320 250/320 250/320 250/320 250/320 250/320 250/320 250/320 290/360 290/360 320/390 320/390 320/390 320/390 320/390 320/390 350/420 350/420

DATI TECNICI / TECHNICAL DATA

260 260 350 350 440 480 590 590 860 970 1250 1250 1420 1580 1953 2400

92 107 152 190 240 300 350 401 525 600 720 820 940 1060 1250 1480

2500 2650

1600 1890

1040 1229

1600 1890

1158 1336

1736 2054

1500 1630

55

45

6,8

7

2620 3099

6

6

PREXTHERM RSW N

Potenza utile / Heat output

Potenza focolare / Heat input

Capacità totale caldaia / Boiler tot capacity

Perdite carico lato acqua / Pressure drop flue water side

Perdite carico lato fumi / Pressure drop flue gas side

Portata fumi * / Flue gas flow-rate *

Pressione max esercizio** / Max working pressure**

min

kW

max

kW

min

kW

max

kW

60

70

100 137 160 196 228 260 341

92

107 152 190 240 300 350 401 525

64,3

75 107,3 147,4 170,9 209,5 277,5 364,5 417

99,5 116 165 206 261 326 378 432 567

390 468 533

600 720 820

495 502 566

648 777 881

465 735 735

611 689 813 962

940 1060 1250 1480

651 731 884 1046

dm3

120

∆t15°C mbar

4

mbar

0,5

kg/h

150

bar

6

120 185 185 235 300 365 365 405

6

12

7

10

17

23

31

22

0,7

1,2

1,2

2,3

3,3

3,5

4,4

4,3

175 249 312 394 492 571 655 856

6

6

6

6

6

6

6

6

1011 1140

850 1250

1359 1608

1250 1500

40

55

6,5

6,5

2050 2426

6

6

* Combustibile gasolio: CO2 = 13% - Combustibile gas: CO2 = 10% * Oil fuel: CO2 = 13% - Gas fuel: CO2 = 10%

28

18

25

25

33

4,8

4,5

5,6

5,4

6

979 1179 1329 1523 1720

6

6

6

6

6

30