86

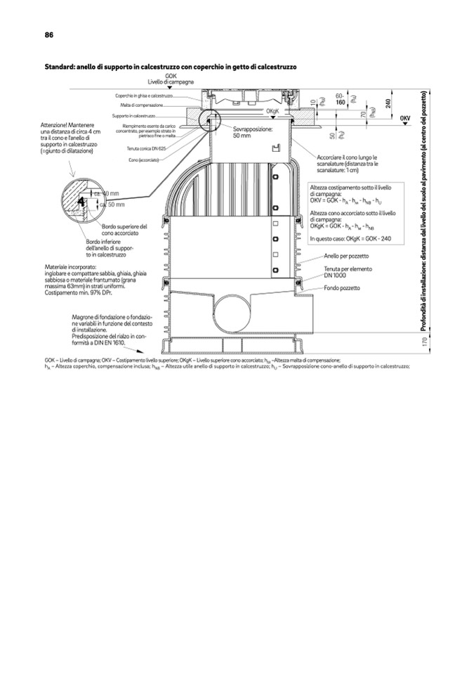
Standard: anello di supporto in calcestruzzo con coperchio in getto di calcestruzzo

P

r

o

f

o

n

d

i

t

a

̀

d

i

i

n

s

t

a

l

l

a

z

i

o

n

e

:

d

i

s

t

a

n

z

a

d

a

l

l

i

v

e

l

l

o

d

e

l

s

u

o

l

o

a

l

p

a

v

i

m

e

n

t

o

(

a

l

c

e

n

t

r

o

d

e

l

p

o

z

z

e

t

t

o

)

Attenzione! Mantenere

una distanza di circa 4 cm

tra il cono e l'anello di

supporto in calcestruzzo

(=giunto di dilatazione)

GOK

Livello di campagna

Coperchio in ghisa e calcestruzzo

Malta di compensazione

Supporto in calcestruzzo

Riempimento esente da carico

concentrato, per esempio strato in

pietrisco fine o malta

Tenuta conica DN 625

Cono (accorciato)

Bordo superiore del

cono accorciato

Sovrapposizione:

50 mm

Bordo inferiore

dell'anello di suppor-

to in calcestruzzo

Materiale incorporato:

inglobare e compattare sabbia, ghiaia, ghiaia

sabbiosa o material6e3frantumato (grana

massima 63mm) in strati uniformi.

Costipamento min. 97% DPr.

Magrone di fondazione o fondazio-

ne variabili in funzione del contesto

di installazione.

Predisposizione del rialzo in con-

formità a DIN EN 1610.

Accorciare il cono lungo le

scanalature (distanza tra le

scanalature: 1 cm)

Altezza costipamento sotto il livello

di campagna:

OKV=GOK-h

A

-h

M

-h

NB

-h

U

Altezza cono accorciato sotto il livello

di campagna:

OKgK=GOK-h

A

-h

M

-h

NB

In questo caso: OKgK = GOK - 240

Anello per pozzetto

Tenuta per elemento

DN 1000

Fondo pozzetto

GOK – Livello di campagna; OKV – Costipamento livello superiore; OKgK – Livello superiore cono accorciato; h

M

–Altezza malta di compensazione;

h

A

– Altezza coperchio, compensazione inclusa; h

NB

– Altezza utile anello di supporto in calcestruzzo; h

U

– Sovrapposizione cono-anello di supporto in calcestruzzo;