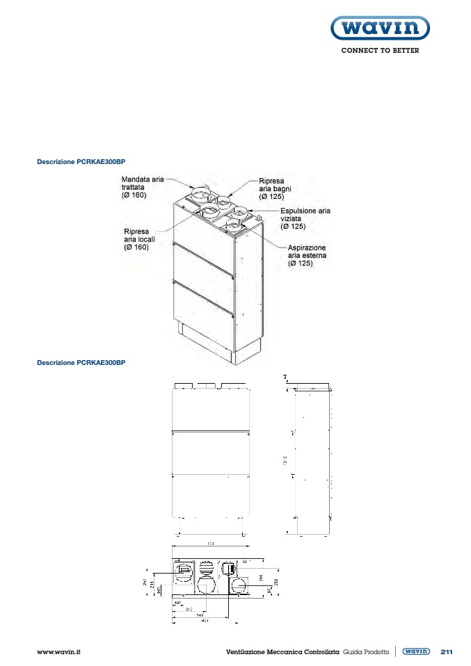
Descrizione PCRKAE300BP

CONNECT TO BETTER

Descrizione PCRKAE300BP

www.wavin.it

Ventilazione Meccanica Controllata Guida Prodotto

211