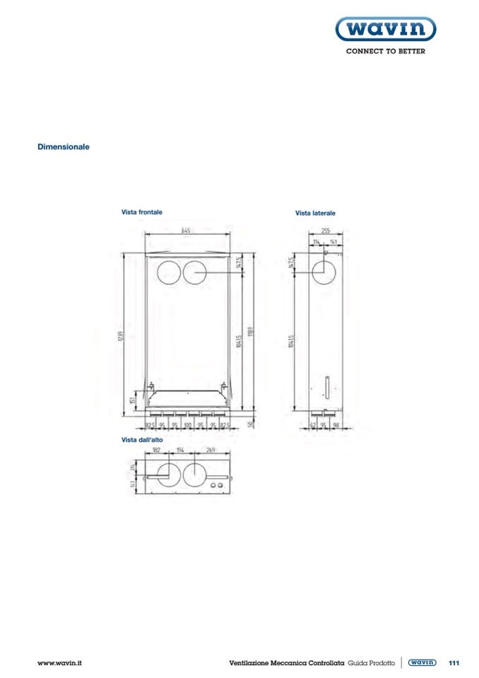
Dimensionale

Vista frontale

Vista laterale

CONNECT TO BETTER

Vista dall'alto

www.wavin.it

Ventilazione Meccanica Controllata Guida Prodotto

111