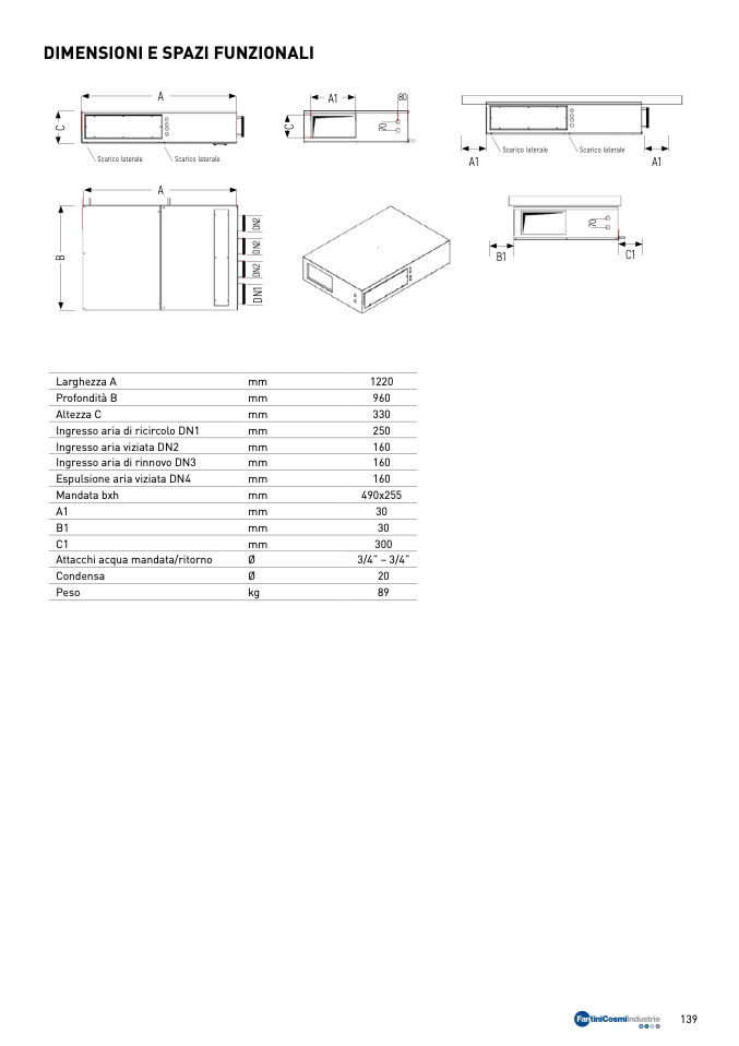
DIMENSIONI E SPAZI FUNZIONALI

Larghezza A

Profondità B

Altezza C

mm

1220

mm

960

mm

330

mm

250

mm

160

mm

160

mm

160

mm

490x255

mm

30

mm

30

mm

300

Ø

3/4” – 3/4”

Ø

20

kg

89

Scarico laterale

A1

A1

Ingresso aria di ricircolo DN1

Ingresso aria viziata DN2

Ingresso aria di rinnovo DN3

Espulsione aria viziata DN4

Mandata bxh

A1

B1

C1

Attacchi acqua mandata/ritorno

Condensa

Peso

A

A

1

80

Scarico laterale

Scarico laterale

B1

Scarico laterale

A

C1

139

B

C

D

N

1

D

N

2

D

N

2

D

N

2

7

0

C

7

0