PROGETTO SU MISURA: RICHIESTE SPECIALI

I tecnici di Bellosta Rubinetterie sono, inoltre, a disposizione di architetti e

designers, per offrire un servizio esclusivo: personalizzazioni di elementi in

funzione di specifiche richieste estetiche o problematiche legate a vincoli

progettuali, verifica della fattibilità attraverso opportuni studi CAD e sviluppo

del disegno tecnico del prodotto speciale richiesto.

Per informazioni e richieste PROGETTI SU MISURA:

ufficiotecnico@bellostarubinetterie.com

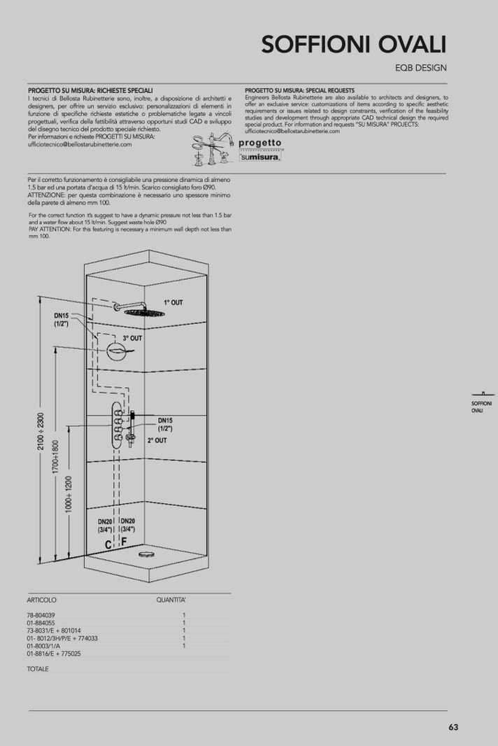
Per il corretto funzionamento è consigliabile una pressione dinamica di almeno

1.5 bar ed una portata d’acqua di 15 lt/min. Scarico consigliato foro Ø90.

ATTENZIONE: per questa combinazione è necessario uno spessore minimo

della parete di almeno mm 100.

For the correct function it’s suggest to have a dynamic pressure not less than 1.5 bar

and a water flow about 15 lt/min. Suggest waste hole Ø90

PAY ATTENTION: For this featuring is necessary a minimum wall depth not less than

mm 100.

SOFFIONI OVALI

EQB DESIGN

PROGETTO SU MISURA: SPECIAL REQUESTS

Engineers Bellosta Rubinetterie are also available to architects and designers, to

offer an exclusive service: customizations of items according to specific aesthetic

requirements or issues related to design constraints, verification of the feasibility

studies and development through appropriate CAD technical design the required

special product. For information and requests “SU MISURA” PROJECTS:

ufficiotecnico@bellostarubinetterie.com

DN15

(1/2")

1° OUT

DN15

(1/2")

2° OUT

F

3° OUT

SOFFIONI

OVALI

ARTICOLO

78-804039

01-884055

73-8031/E + 801014

01- 8012/3H/P/E + 774033

01-8003/1/A

01-8816/E + 775025

TOTALE

QUANTITA’

1

1

1

1

1

DN20

(3/4")

C

DN20

(3/4")

63

2

1

0

0

÷

2

3

0

0