COMPOSIZIONI DOCCIA

MICROFONO

Art. 01-6905/3/B/E + 01-104033, 01-6903/3/1/E + 034127, 01-6913/5/1,

Art. 01-6912/3/P/E + 694012, 01-6913/5/1, 78-6931/D/SP; 01-

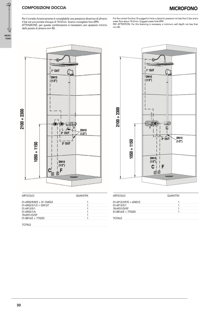
Per il corretto funzionamento è consigliabile una pressione dinamica di almeno

For the correct function it’s suggest to have a dynamic pressure not less than 2 bar and a

01-6903/1/A

2 b

,

a

7

r e

8

d

-

u

6

na

9

p

3

or

1

ta

/

ta

D

d

/

’a

S

cq

P

ua

;

d

0

i 18

-

lt

8

/m

8

in

1

. S

6

c

/

a

E

rico

+

co

7

ns

7

igl

5

iat

0

o

2

fo

5

ro

.

Ø90.

ATTENZIONE: per questa combinazione è necessario uno spessore minimo

water flow about 18 lt/min. Suggest waste hole Ø90

Mixer 1OUT, 3OUT diverter, Shower Column, Shower kit, Headshower, Round waste.

Thermostaic mixer 1+2OUT, Shower Column, Headshower, Round waste.

PAY ATTENTION: For this featuring is necessary a minimum wall depth not less than

Miscelatore remoto 1OUT, Deviatore 3OUT, Colonna regolabile, Gancio docmcmia8,0.Soffione , Piletta tonda.

della parete di almeno mm 80.

Miscelatore termostatico remoto 1+2OUT, Colonna regolabile, Piletta tonda.

MICRO-

FONO

T

(° C)

80

NO

65

1° OUT

SI

DN15

(1/2")

1° OUT

DN15

(1/2")

50

2° OUT

3° OUT

DN15

(1/2")

SI

2° OUT

NO

DN15

(1/2")

SI

C

F

DN15

(1/2")

5

DN15

(1/2")

1

C

F

1

BAR

Per il correttoARfTuICnOzLioOnamento è consigliabile unQaUpANreTIsTAs’ione dinamica dAi RaTlImCOeLnOo 2 bar ed una

QUANTITA’

portata d'acqua di 18 lt/min. Scarico consigliato foro Ø90

portata d'acqua di 18 lt/min. Scarico consigliato foro Ø90

ATTENZIONE : per questa combinazione è necessario uno spessore m

01-6912/3/P/E + 694012

1

ATTENZIONE : per questa combinazione

è necessario uno saplmesesnoremmin8i0m.o della parete di

01-6913/5/1

1

78-6931/D/SP

1

Per il corretto funzionamento è consigliabile una pressione dinamica di

01-6905/R/B/E + 01-104033

1

01-6903/3/1/E + 034127

1

01-6913/5/1

1

almeno mm 80.

01-6903/1/A

1

For the co0r1r-e88c1t6f/uEn+t7io75n02it5's suggest to have a dynami1c pressure not less t

78-6931/D/SP

1

For the correct funtion it's suggest to have a dynamic pressurfleownoatbleusost 1th8altn/m2inb.aSruagngdesat wasteter hole Ø90

01-8816/E + 775025

1

TOTALE

flow abuot 18lt/min. Suggest waste hole Ø90

PAY ATTENTION: For this feauturing is necessary a minimum wall dept

TOTALE

PAY ATTENTION: For this feauturing is necessary a minimum wall depth not less than mm 80.

30

8

a

i

h

1

0

5

0

÷

1

1

5

0

1

0

5

0

÷

1

1

5

0

2

1

0

0

÷

2

3

0

0

2

1

0

0

÷

2

3

0

0