F

i

T

C

CSI IN Alya H WI-FI

CSI IN Alya H WI-FI

con modulo solare

E

CSI IN ALYA H WiF

(f

i

ornito come accessorio)

CSI IN ALYA H WiFi

S

INSTALLAZIONE POSTERIORE

con modulo solare

(vista frontale)

G

SC

SVS

RS

US

GAS

ES

CR

MS

L

RI

C

AL

CSI IN ALYA H WiFi

con modulo solare

CONNESSIONI LATERALI

LATO DESTRO

(vista da esterno cassa)

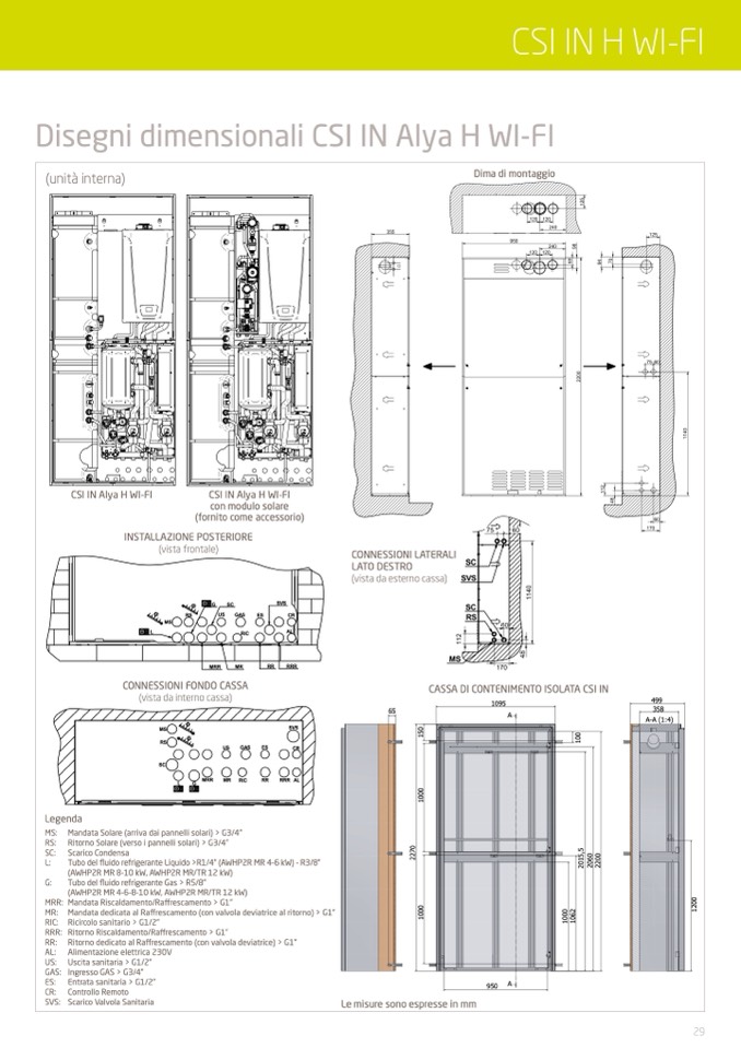
Disegni dimensionali CSI IN Alya H WI-FI

(unità interna)

Dima di montaggio

Legenda

MS

SVS

B

RS

US

GAS

ES

CR

SC

N

L

G

MRR

MR RIC

RR

RRR AL

O

I

MRR

MR

CONNESSIONI FONDO CASSA

(vista da interno cassa)

RR

RRR

MS

SVS

RS

US

GAS

ES

CR

SC

L

G

MRR

MR RIC

RR

RRR AL

7816993 (02-08/22)

80

0

1

0

7

2

5

,

5

0

0

2

1

0

2

6

0

2

0

2

MS: Mandata Solare (arriva dai pannelli solari) > G3/4”

RS: Ritorno Solare (verso i pannelli solari) > G3/4”

SC: Scarico Condensa

L:

Tubo del fluido refrigerante Liquido >R1/4” (AWHP2R MR 4-6 kW) - R3/8”

(AWHP2R MR 8-10 kW, AWHP2R MR/TR 12 kW)

G:

Tubo del fluido refrigerante Gas > R5/8”

(AWHP2R MR 4-6-8-10 kW, AWHP2R MR/TR 12 kW)

MRR: Mandata Riscaldamento/Ra

ffrescamento > G1”

MR: Mandata dedicata al Ra

ffrescamento (con valvola deviatrice al ritorno) > G1”

RIC: Ricircolo sanitario > G1/2”

G

SC

SVS

RRR: Ritorno Riscaldamento/Ra

ffrescamento > G1”

RR: Ritorno dedicato al Ra

ffrescamento (con valvola deviatrice) > G1”

RS

US

GAS

ES

CR

MS

AL: Alimentazione elettrica 230V

L

RIC

AL

US: Uscita sanitaria > G1/2”

GAS: Ingresso GAS > G3/4”

ES: Entrata sanitaria > G1/2”

0

0

2

0

1

0

2

6

0

1

1

1

CR: Controllo Remoto

SVS: Scarico Valvola Sanitaria

MRR

MR

RR

RRR

950 A

65

CASSA DI CONTENIMENTO ISOLATA CSI IN

1095

A

0

5

1

0

1

499

358

A-A (177:426)281.02

Le misure sono espresse in mm

CSI IN H WI-FI

29