DIMENSIONAL

I

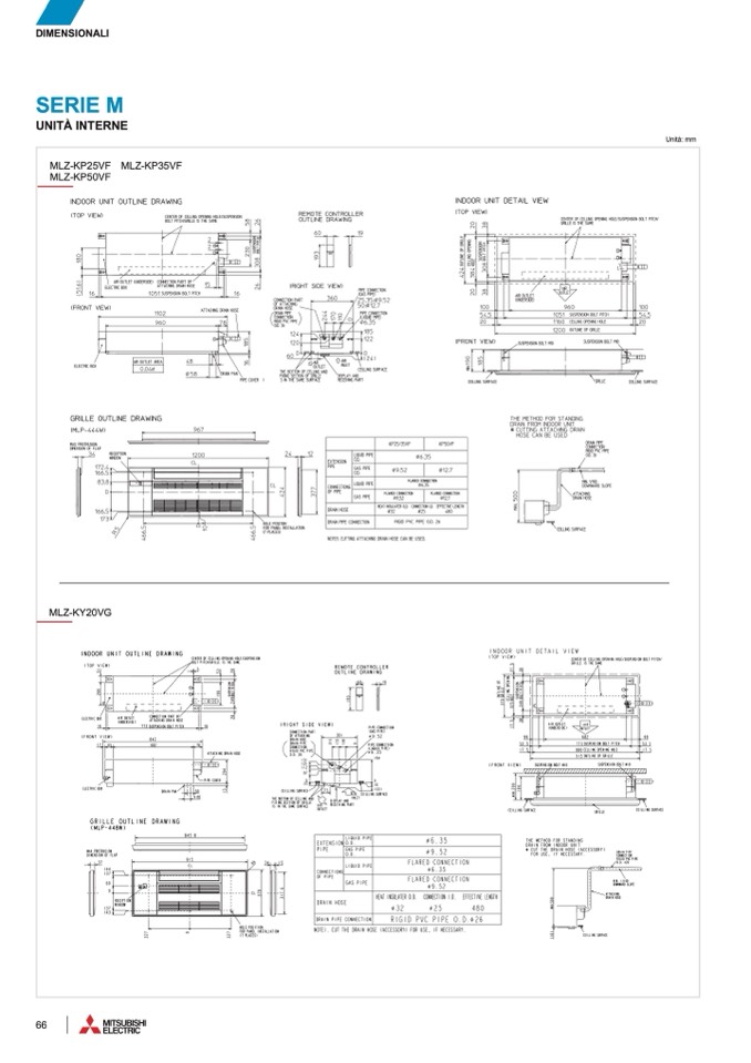
SERIE M

UNITÀ INTERNE

m

8

MLZ-KP25VF MLZ-KP35V

F

MLZ-KP25V

F MLZ-KP35V

F MLZ-KP50V

F

MLZ-KP50V

F

INDOOR UNI

T

MLZ-KP25V

F MLZ-KP35V

F MLZ-KP50V

F

INDOOR UNIT

18

t

e

o

se

n

hose

1

8

e

e

h

ose

G

0

V

G

MLZ-KY20V

G

MLZ-KY20VG

INDOOR UNI

T

MLZ-KY20VG

INDOOR UNI

T

3

0

3

1

2

5

6

6

Unità: mm

Unit : mm

Unit : mm