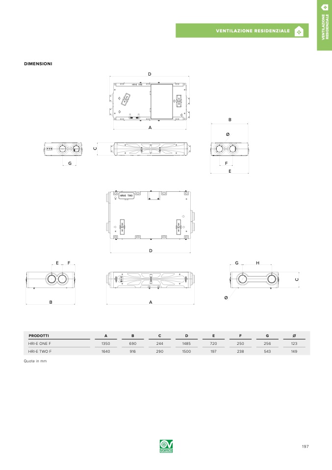
DIMENSIONI

D

A

B

Ø

G

F

E

D

E

F

G

H

B

A

Ø

PRODOTTI

A

B

C

D

E

F

G

Ø

HRI-E ONE F

1350

690

244

1485

720

250

256

123

HRI-E TWO F

1640

916

290

1500

197

238

543

149

Quote in mm

VENTILAZIONE RESIDENZIALE

A

C

C

V

E

N

T

I

L

A

Z

I

O

N

E

R

E

S

I

D

E

N

Z

I

A

L

E

197