8.1

8.2

8.3

8.4

8.5

8.6

8.7

8.8

8.9

8.10

8.11

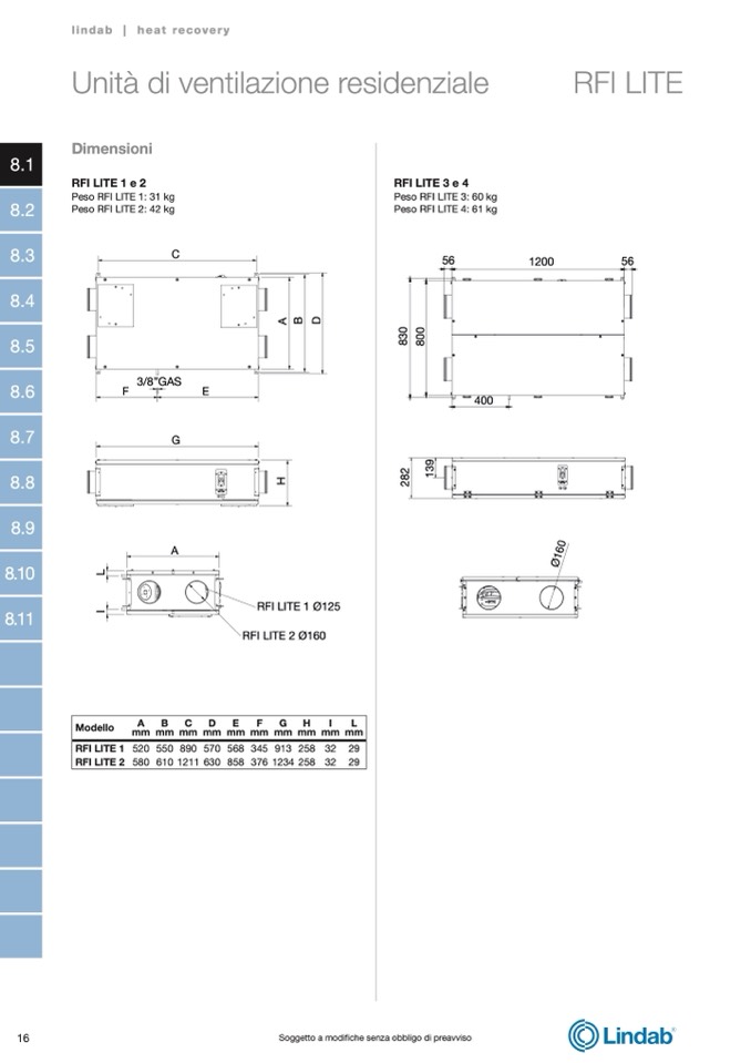
Dimensioni

RFI LITE 1 e 2

Peso RFI LITE 1: 31 kg

Peso RFI LITE 2: 42 kg

C

3/8”GAS

F

E

G

A

RFI LITE 3 e 4

Peso RFI LITE 3: 60 kg

Peso RFI LITE 4: 61 kg

16

Soggetto a modifiche senza obbligo di preavviso

lindab | heat recovery

Unità di ventilazione residenziale

RFI LITE

Ø

1

6

0

I

L

H

A

B

2

8

2

1

3

9

8

3

0

8

0

0

D

A

B

C

D

E

F

G

H

I

L

mm mm mm mm mm mm mm mm mm mm

520 550 890 570 568 345 913 258 32

29

RFI LITE 2 580 610 1211 630 858 376 1234 258 32

29

Modello

RFI LITE 1

RFI LITE 1 Ø125

RFI LITE 2 Ø160

56

1200

56

400