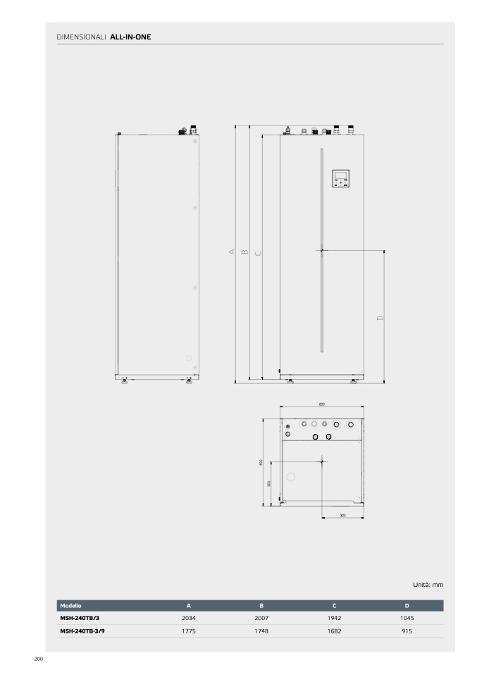
DIMENSIONALI ALL-IN-ON

E

Unità: mm

Modello

A

B

C

D

MSH-240TB/3

2034

2007

1942

1045

MSH-240TB-3/9

1775

1748

1682

91

5

Unità: mm

200