Disegni dimensionali

Auriga P 4M/6

M

3

75.5

209

435

4

4

333

9

9

528

210

121

644

37

9

39

3

375

130

1

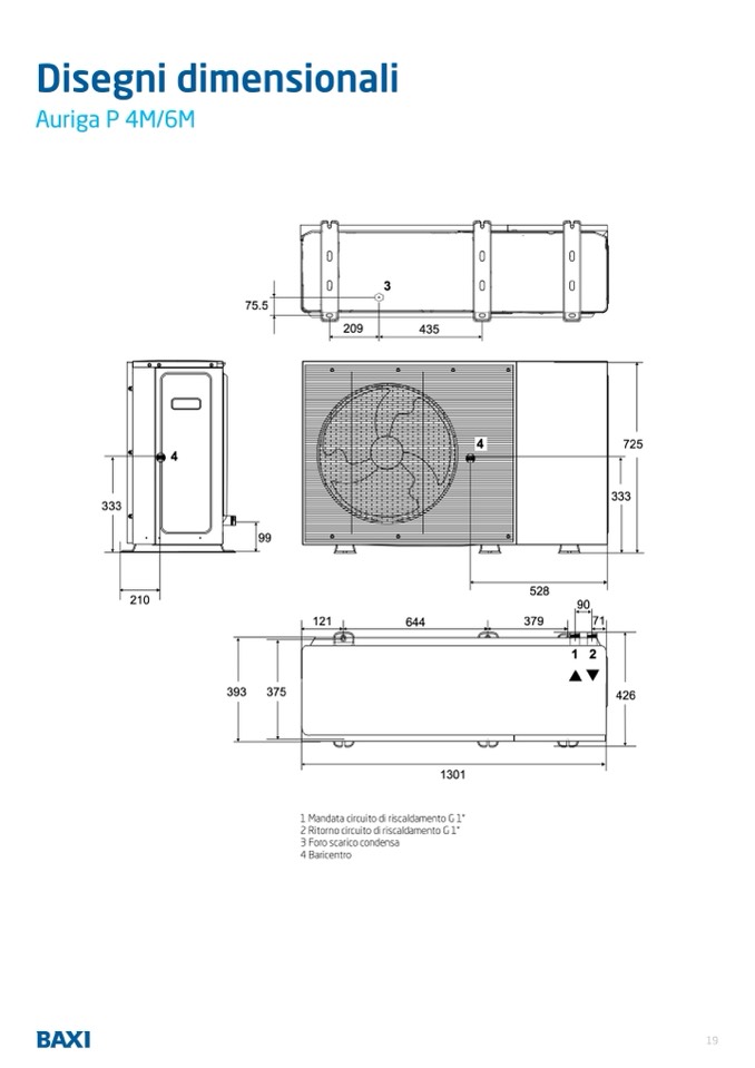
1 Mandata circuito di riscaldamento G 1"

2 Ritorno circuito di riscaldamento G 1"

3 Foro scarico condensa

4 Baricentro

9

0

7

1

1

2

725

333

426

19