ACQUAMAS

®

1

Termoaccumulatore per acqua tecnica

con modulo ACQUAMAS

®

per produzione istantanea di A.C.S.

Pmax Tmax

3bar 99°C

Pmax

8bar

Tmax

99°C

Fmax

30°f

ACQUAMAS

®

1

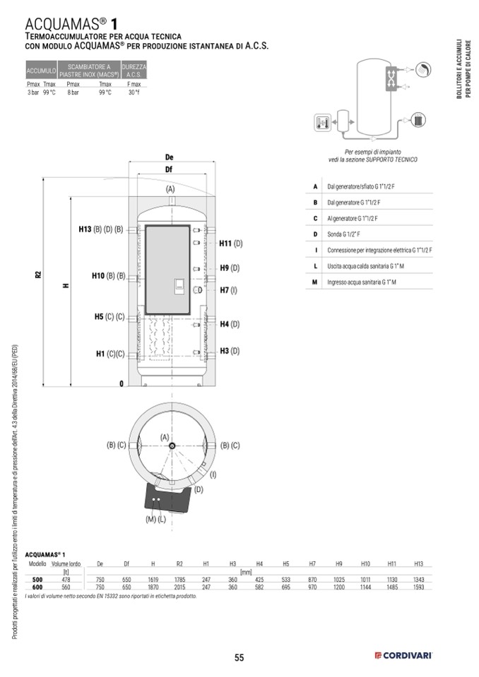
(I)

(D)

H1

Modello Volume lordo

[lt]

De

Df

R2

H3

H4

H5

[mm]

H7

H9

H10

H11

H13

(B) (C)

(A)

(M) (L)

H

H11 (D)

H9 (D)

H7 (I)

H4 (D)

H3 (D)

(B) (C)

De

Per esempi di impianto

vedi la sezione SUPPORTO TECNICO

A Dal generatore/sfiato G 1”1/2 F

B Dal generatore G 1”1/2 F

C Al generatore G 1”1/2 F

D Sonda G 1/2” F

I Connessione per integrazione elettrica G 1”1/2 F

L Uscita acqua calda sanitaria G 1” M

M Ingresso acqua sanitaria G 1” M

500

478

750

650

1619

1785

247

360

425

533

870

600

560

750

650

1870

2015

247

360

582

695

970

I valori di volume netto secondo EN 15332 sono riportati in etichetta prodotto.

1025

1011

1130

1343

1200

1144

1485

1593

55

ACCUMULO

SCAMBIATORE A

PIASTRE INOX (MACS

®

)

DUREZZA

A.C.S.

Df

(A)

H

H13 (B) (D) (B)

H10 (B) (B)

H5 (C) (C)

H1 (C)(C)

0

P

r

o

d

o

t

t

i

p

r

o

g

e

t

t

a

t

i

e

r

e

a

l

i

z

z

a

t

i

p

e

r

l

u

t

i

l

i

z

z

o

e

n

t

r

o

i

l

i

m

i

t

i

d

i

t

e

m

p

e

r

a

t

u

r

a

e

d

i

p

r

e

s

s

i

o

n

e

d

e

l

l

A

r

t

.

4

.

3

d

e

l

l

a

D

i

r

e

t

t

i

v

a

2

0

1

4

/

6

8

/

E

U

(

P

E

D

)

R

2

B

O

L

L

I

T

O

R

I

E

A

C

C

U

M

U

L

I

P

E

R

P

O

M

P

E

D

I

C

A

L

O

R

E