PUFFER COMPACT

Termoaccumulatore per acqua di riscaldamento per locali con altezza ridotta

Pmax

3 bar

Tmax

99 °C

Modello

2500

2306

[lt]

3000

3017

4000

3986

4500

4411

5000

5042

6000

5672

8000

7564

1250

1450

1500

1700

1600

1800

1800

2000

1800

2000

1800

2000

1800

2000

2351

2465

2180

2372

2456

2643

2230

2565

2480

2758

2730

2960

3480

3650

[mm]

2770

2770

3050

3000

3190

3390

4020

140

556

886

109,5

567

841

94,5

574

910

90

582

856

90

583

919

90

605

1005

90

606

1066

Modello

2500

3000

4000

4500

5000

6000

8000

H5

H7

H8

H9

H11

H12

A-C

A'-I

O

996

1051

932

1252

1022

1414

947

1267

1031

1423

1114

1295

1372

1526

[mm]

1216

1436

1546

1115

1297

1389

1246

1470

1582

1130

1312

1404

1255

1479

1591

1535

1646

1922

1986

2138

2446

1876

1"1/2

1662

2"

1918

2"

1677

2"

1927

2"

2155

3"

2904

3"

Connections F

1"1/2

-

2"

1"

2"

1"

2"

1"

2"

1"

2"

1"

2"

1"

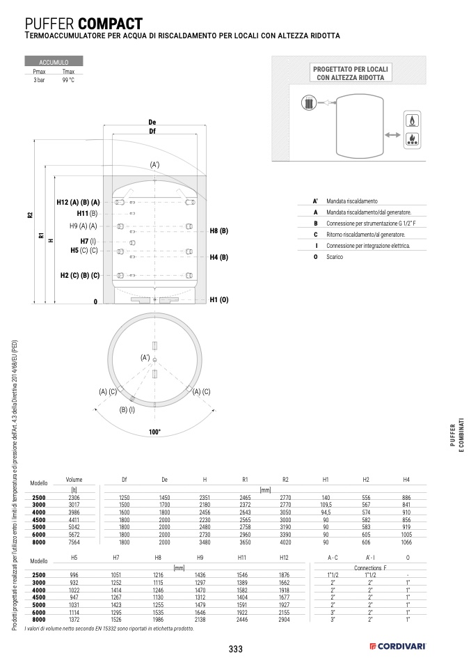
(A) (C)

(A’)

(B) (I)

100°

I valori di volume netto secondo EN 15332 sono riportati in etichetta prodotto.

De

H8 (B)

H4 (B)

H1 (O)

(A) (C)

A' Mandata riscaldamento

A Mandata riscaldamento/dal generatore.

B Connessione per strumentazione G 1/2” F

C Ritorno riscaldamento/al generatore.

I Connessione per integrazione elettrica.

O Scarico

Volume

Df

De

H

R1

R2

H1

H2

H4

333

PROGETTATO PER LOCALI

CON ALTEZZA RIDOTTA

ACCUMULO

Df

(A’)

R

1

H

H12 (A) (B) (A)

H11 (B)

H9 (A) (A)

H7 (I)

H5 (C) (C)

H2 (C) (B) (C)

0

P

r

o

d

o

t

t

i

p

r

o

g

e

t

t

a

t

i

e

r

e

a

l

i

z

z

a

t

i

p

e

r

l

u

t

i

l

i

z

z

o

e

n

t

r

o

i

l

i

m

i

t

i

d

i

t

e

m

p

e

r

a

t

u

r

a

e

d

i

p

r

e

s

s

i

o

n

e

d

e

l

l

A

r

t

.

4

.

3

d

e

l

l

a

D

i

r

e

t

t

i

v

a

2

0

1

4

/

6

8

/

E

U

(

P

E

D

)

R

2

P

U

F

F

E

R

E

C

O

M

B

I

N

A

T

I