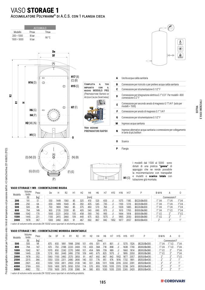
VASO STORAGE 1

Accumulatore Polywarm

®

di A.C.S. con 1 flangia cieca

Modello

200 ÷ 1000

1500 ÷ 5000

Pmax

8 bar

6 bar

Tmax

90 °C

De

(0) (M) (D)

H16 (D)

(G) (D) (C)

(A)

(P)

H15 (E)

(F) (E)

I modelli dal 1500 al 5000 sono

dotati di una pratica “gonna” di

appoggio che ne rende possibile

la movimentazione con transpallet

VASO STORAGE 1 WB - COIBENTAZIONE RIGIDA

200

191

51

550

3 0 0

2

9

2 H

2 (

M6)

4(

N

)

6

5

0

500

500

89

750

800

794

149

900

1449 1560

1499 1640

1800 1960

2135 2330

2221 2450

2415 2660

2492 2820

85

325

85

350

85

375

85

405

105 458

109

0

440

91

467

//

//

//

//

//

//

1075 1185

1100 1210

1329 1485

1610 1765

1664 1818

1895 2050

1877 2057

1” 1/4

1” 1/4

1” 1/4

1” 1/4

1” 1/2

1” 1/2

1"1/4

1"1/4

1"1/4

1"1/4

1"1/2

1"

1000

1042

170

1000

H1(O)

1500

1445

231

1100

2000

1978

367

1300

I valori di volume netto secondo EN 15332 sono riportati in etichetta prodotto.

VASO STORAGE 1 WC - COIBENTAZIONE MORBIDA SMONTABILE

Modello

500

800

1000

1500

2000

2500

3000

4000

5000

R2 H1

H2 H4 H6 H7 H15 H16 H17

Volume

Peso

lordo(0) (M) (D)

De

DF(A)

H

R1

1998 2090

2220 2400

[lt]

500

794

1042

1445

1978

2315

2921

3769

4982

[kg]

(N) (B)

[mm]

501 611 801

568 718 898

589 739 989

94

147

870 650 1891

970 750 2188

1070 850 2242

1210 950 2440

1360 1100 2492

1350 125(0P) 2311

1350 1250 2811

1500 1400 2875

1700 1600 2915

101 416

113 433

101 454

109 440

91 467

140 551

140 551

114 570

94 580

//

//

//

//

1370 1526

1638 1793

1660 1814

1895 2050

1877 2057

1732 1891

2232 2391

2238 2410

2265 2420

1” 1/4

1” 1/4

1” 1/2

1” 1/2

2”

2”

2”

2”

2”

1” 1/2

1” 1/2

2”

2”

2”

2”

2”

2”

2”

1"1/4

1"1/4

1"1/4

1"1/4

1"1/2

1"

1"

1"

1"

167

2270 2490

(G) (D) (C)

(F) (E)

228

352

366

432

555

732

2495 2730

2570 2850

2480 2690

2950 3130

3050 3250

3130 3380

675 825

692 867

776 951 976 1816

836 1011 1036 2316

855 1030 1035 2315

855 1030 1035 2335

I valori di volume netto secondo EN 15332 sono riportati in etichetta prodotto.

(A)

O Scarico

P Flangia

H1(O)

e muletti e scarico totale con

tubazione già montata.

H17 (B)

(C) (B)

H15 (E)

H7 (F)

0

(N) (HB)17 (B)

(C) (B)

A Uscita acqua calda sanitaria

B Connessione per ricircolo o per prelievo acqua calda sanitaria

C Connessione per strumentazione G 1/2” F

D

ConnessioneperintegrazioneelettricaG1”1/2F Permodelli>800

H7 (F)

Modello

lordo

Peso

De

H

R2

H1

H2

H4

H6

H7

H15 H16 H17

Volume H6 (G)

H4 (P)

P

Øi220/Øe300

Øi220/Øe300

Øi220/Øe300

Øi300/Øe380

Øi300/Øe380

Øi300/Øe380

Øi350/Øe430

P

Øi220/Øe300

Øi300/Øe380

Øi300/Øe380

Øi300/Øe380

Øi350/Øe430

Øi350/Øe430

Øi350/Øe430

Øi350/Øe430

Øi350/Øe430

B-M-N

A

O

[lt]

[kg]

[mm]

410 520 650

435 545 735

460 570 760

540 690 870

593 743 993

675 825 1075

692 867 842 1952

Connessioni F

1” 1/4

1” 1/4

1” 1/4

1” 1/2

2”

2”

2”

2”

1"

B-M-N

A

O

Connessioni F

Vedi sezione

PREPARATORI RAPIDI

N

Ingresso alternativo acqua sanitaria o connessione per collegamento

in serie di più bollitori

185

1075

842 1952

H1 (O)

connessione G 2” F

ConnessionepersecondoanododimagnesioG1”1/4F (soloper

modelli > 1500)

E

F Connessione per anodo di magnesio G 1” 1/4 F

G Connessione per strumentazione G 1/2” F

M Ingresso acqua sanitaria

ACCUMULO

Df

(A)

R

1

H

H16 (D)

H6 (G)

H4 (P)

H2 (M) (N)

H1(O)

De

Df

Completa il tuo

impianto con il

nuovo MODULO PRS

(Preparatore Rapido di

Acqua Calda Sanitaria)

P

r

o

d

o

t

t

i

p

r

o

g

e

t

t

a

t

i

e

r

e

a

l

i

z

z

a

t

i

p

e

r

l

u

t

i

l

i

z

z

o

e

n

t

r

o

i

l

i

m

i

t

i

d

i

t

e

m

p

e

r

a

t

u

r

a

e

d

i

p

r

e

s

s

i

o

n

e

d

e

l

l

A

r

t

.

4

.

3

d

e

l

l

a

D

i

r

e

t

t

i

v

a

2

0

1

4

/

6

8

/

E

U

(

P

E

D

)

R

2

R

1

H

R

2

E

X

T

R

A

E

V

A

S

I

I

N

E

R

Z

I

A

L

I