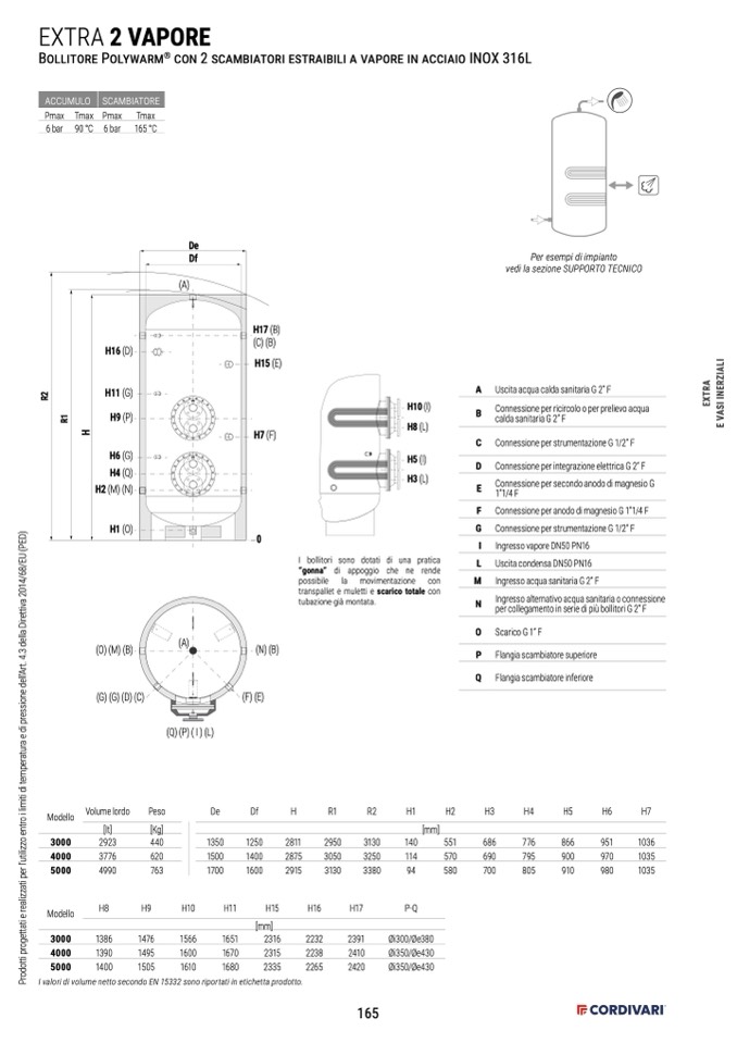
EXTRA 2 VAPORE

Bollitore Polywarm

®

con 2 scambiatori estraibili a vapore in acciaio INOX 316L

Pmax Tmax Pmax Tmax

6bar 90°C 6bar 165°C

Modello

Volume lordo

[lt]

H8

H9

H

R1

R2

H1

H2

H3

H

H3(L)

E

(O) (M) (B)

(A)

(N) (B)

(O) (M) (B)

(A)

(N) (B)

(F) (E)

Df

(G) (G) (D) (C)

(F) (E)

(G) (G) (D) (C)

De

De

Per esempi di impianto

vedi la sezione SUPPORTO TECNICO

Uscita acqua calda sanitaria G 2” F

Connessione per ricircolo o per prelievo acqua

calda sanitaria G 2” F

Connessione per strumentazione G 1/2” F

Connessione per integrazione elettrica G 2” F

Connessione per secondo anodo di magnesio G

1”1/4 F

Connessione per anodo di magnesio G 1”1/4 F

Connessione per strumentazione G 1/2” F

Ingresso vapore DN50 PN16

Uscita condensa DN50 PN16

Ingresso acqua sanitaria G 2” F

Ingresso alternativo acqua sanitaria o connessione

per collegamento in serie di più bollitori G 2” F

Scarico G 1” F

Flangia scambiatore superiore

Flangia scambiatore inferiore

H4

H5

H6

H7

(Q)(P)(I)(L)

(Q)(P)(I)(L)

Peso

De

H17 (B)

17 (B)

C

) (

(

CB

)

) (

B

)

H15H(1E5) (E)

H7 (F)

H7 (F)

0

0

I bollitori sono dotati di una pratica

A

B

C

D

“gonna” di appoggio che ne rende

possibile la movimentazione con

M

transpallet e muletti e scarico totale con

tubazione già montata.

[Kg]

3000

2923

440

1350

1250

2811

2950

3130

140

551

686

776

866

951

1036

4000

3776

620

1500

1400

2875

3050

3250

114

570

690

795

900

970

1035

5000

4990

763

1700

1600

2915

3130

3380

94

580

700

805

910

980

1035

Modello

P-Q

3000

1386

1476

4000

1390

1495

5000

1400

1505

I valori di volume netto secondo EN 15332 sono riportati in etichetta prodotto.

H10

H11

1566

1651

1600

1670

1610

1680

H15

H16

H17

[mm]

2316

2232

2391

2315

2238

2410

2335

2265

2420

[mm]

Øi300/Øe380

Øi350/Øe430

Øi350/Øe430

165

H

1

0 (

HI

)

1

0 (

I

)

H8 (L)

H8 (L)

H5 (I) H5

(I)

H3 (L)

F

G

I

L

N

O

P

Q

ACCUMULO

SCAMBIATORE

Df

Df

(A)

(A)

R

1

R

1

H

H

H1H61(6D()D)

H1H1(1G()G)

H9H(9P()P)

H6 (G)

H6 (G)

H4 (Q)

H4 (Q)

2 (M) (N)

H2 (M) (N)

H1 (O)

H1 (O)

H

(

P

r

o

d

o

t

t

i

p

r

o

g

e

t

t

a

t

i

e

r

e

a

l

i

z

z

a

t

i

p

e

r

l

u

t

i

l

i

z

z

o

e

n

t

r

o

i

l

i

m

i

t

i

d

i

t

e

m

p

e

r

a

t

u

r

a

e

d

i

p

r

e

s

s

i

o

n

e

d

e

l

l

A

r

t

.

4

.

3

d

e

l

l

a

D

i

r

e

t

t

i

v

a

2

0

1

4

/

6

8

/

E

U

(

P

E

D

)

R

2

R

2

E

X

T

R

A

E

V

A

S

I

I

N

E

R

Z

I

A

L

I