BOLLY

®

PRIMO

Bollitore Polywarm

®

per produzione di A.C.S. con 1 scambiatore fisso

per installazione a parete o a basamento

Pmax

Tmax

Pmax

Tmax

10bar

90°C

12bar

110°C

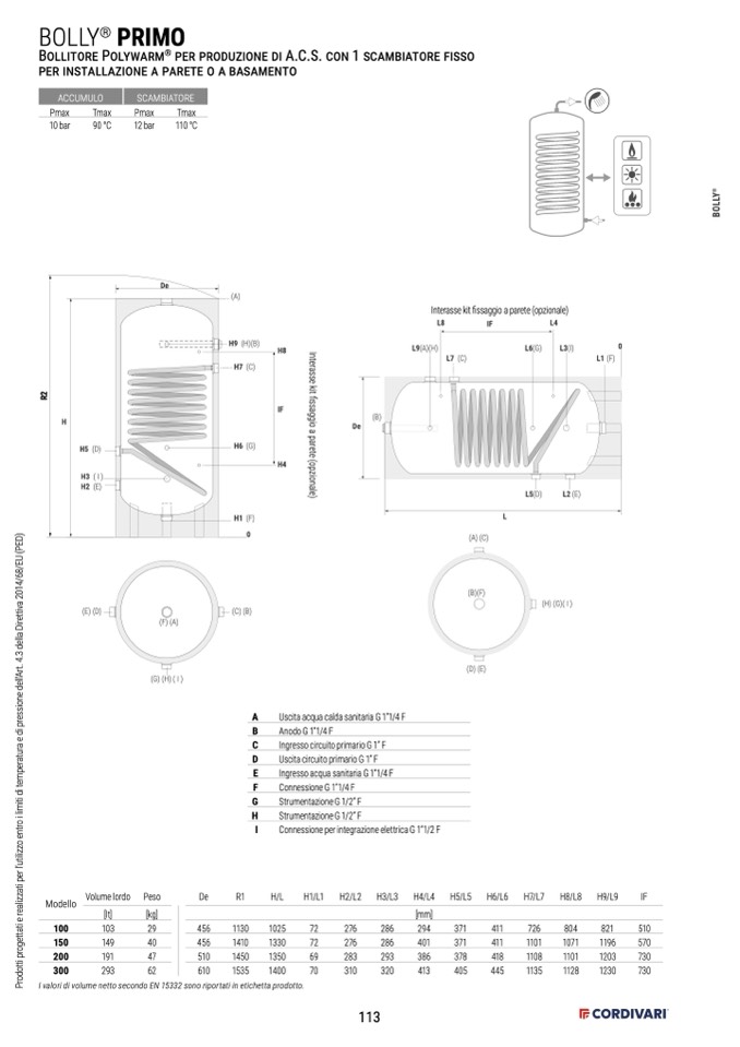
Modello

Volume lordo

Peso

De

R1

A

Uscita acqua calda sanitaria G 1”1/4 F

B

Anodo G 1”1/4 F

C

Ingresso circuito primario G 1” F

D

Uscita circuito primario G 1” F

E

Ingresso acqua sanitaria G 1”1/4 F

F

Connessione G 1”1/4 F

G

Strumentazione G 1/2” F

H

Strumentazione G 1/2” F

I

Connessione per integrazione elettrica G 1”1/2 F

H/L

H1/L1 H2/L2 H3/L3 H4/L4

H5/L5 H6/L6

H7/L7 H8/L8

H9/L9

IF

H

(B)

De

(E) (D)

H1 (F)

0

(C) (B)

L

(A) (C)

(B)(F)

(D) (E)

(H) (G)( I )

[lt]

100

103

29

456

150

149

40

456

200

191

47

510

300

293

62

610

[mm]

1130

1025

72

276

286

294

371

411

726

804

821

510

1410

1330

72

276

286

401

371

411

1101

1071

1196

570

1450

1350

69

283

293

386

378

418

1108

1101

1203

730

1535

1400

70

310

320

413

405

445

1135

1128

1230

730

De

(F) (A)

(G) (H) ( I )

[kg]

I valori di volume netto secondo EN 15332 sono riportati in etichetta prodotto.

(A)

H8

IF

H4

L8

IF

L4

L9(A)(H)

L3(I)

0

L1 (F)

113

Interasse kit fissaggio a parete (opzionale)

ACCUMULO

SCAMBIATORE

H5 (D)

H3 ( I )

H2 (E)

H9 (H)(B)

H7 (C)

H6 (G)

L7 (C)

L6(G)

L5(D)

L2 (E)

I

n

t

e

r

a

s

s

e

k

i

t

f

i

s

s

a

g

g

i

o

a

p

a

r

e

t

e

(

o

p

z

i

o

n

a

l

e

)

P

r

o

d

o

t

t

i

p

r

o

g

e

t

t

a

t

i

e

r

e

a

l

i

z

z

a

t

i

p

e

r

l

u

t

i

l

i

z

z

o

e

n

t

r

o

i

l

i

m

i

t

i

d

i

t

e

m

p

e

r

a

t

u

r

a

e

d

i

p

r

e

s

s

i

o

n

e

d

e

l

l

A

r

t

.

4

.

3

d

e

l

l

a

D

i

r

e

t

t

i

v

a

2

0

1

4

/

6

8

/

E

U

(

P

E

D

)

R

2

B

O

L

L

Y

®