mod. WHPF-25-PU

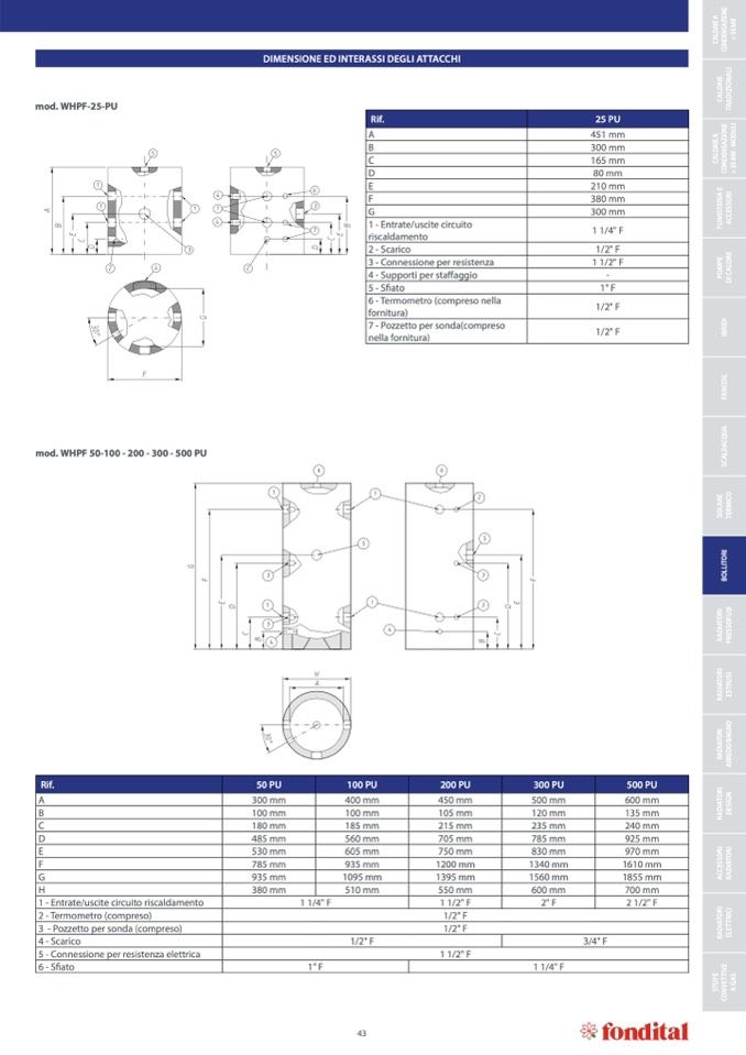
mod. WHPF 50-100 - 200 - 300 - 500 PU

Rif.

A

B

C

D

E

F

G

H

1 - Entrate/uscite circuito riscaldamento

2 - Termometro (compreso)

3 - Pozzetto per sonda (compreso)

4 - Scarico

5 - Connessione per resistenza elettrica

6 - Sfiato

50 PU

300 mm

100 mm

180 mm

485 mm

530 mm

785 mm

935 mm

380 mm

100 PU

400 mm

100 mm

185 mm

560 mm

605 mm

935 mm

1095 mm

510 mm

1/2" F

200 PU

450 mm

105 mm

215 mm

705 mm

750 mm

1200 mm

1395 mm

550 mm

1 1/2" F

1/2" F

1/2" F

1 1/2" F

300 PU

500 mm

120 mm

235 mm

785 mm

830 mm

1340 mm

1560 mm

600 mm

2" F

1 1/4" F

500 PU

600 mm

135 mm

240 mm

925 mm

970 mm

1610 mm

1855 mm

700 mm

2 1/2" F

DIMENSIONE ED INTERASSI DEGLI ATTACCHI

E

N

A

E

I

O

I

Z

A

W

k

A

D

L

S

N

E

5

3

A

C

D

N

O

<

C

I

L

A

E

I

A

D

N

O

I

Z

L

A

C

I

D

A

R

T

E

N

I

L

U

A

E

I

O

I

Z

A

D

O

A

D

S

N

M

-

L

A

C

E

D

N

W

k

5

O

C

3

>

E

A

I

I

R

R

E

T

O

S

S

I

M

E

C

U

F

A

E

P

E

R

O

L

M

O

P

A

C

I

D

I

D

I

R

B

I

L

I

O

C

N

A

F

A

U

Q

C

A

D

L

A

C

S

E

R

O

C

I

A

L

O

M

R

E

S

T

I

R

O

T

I

L

O

B

I

R

I

S

U

O

T

A

I

F

O

S

D

A

S

E

R

R

P

I

R

O

T

I

S

U

A

I

D

R

T

S

A

R

E

I

R

O

N

G

O

T

A

I

A

B

O

D

A

R

D

E

R

A

I

R

O

T

A

N

G

I

I

D

S

E

D

A

R

I

R

O

I

R

O

S

E

T

A

I

C

A

D

A

R

I

R

O

I

C

I

T

A

I

R

T

D

A

R

E

L

E

E

V

I

E

F

UT

E

S

A

G

T

S

V

N

O

A

C

1 1/4" F

1" F

3/4" F

43

Rif.

A

B

C

D

E

F

G

1 - Entrate/uscite circuito

riscaldamento

2 - Scarico

3 - Connessione per resistenza

4 - Supporti per staffaggio

5 - S

fiato

6 - Termometro (compreso nella

fornitura)

7 - Pozzetto per sonda(compreso

nella fornitura)

25 PU

451 mm

300 mm

165 mm

80 mm

210 mm

380 mm

300 mm

1 1/4" F

1/2" F

1 1/2" F

-

1" F

1/2" F

1/2" F