Collettori per sistemi forzati

SCF-25/4B A

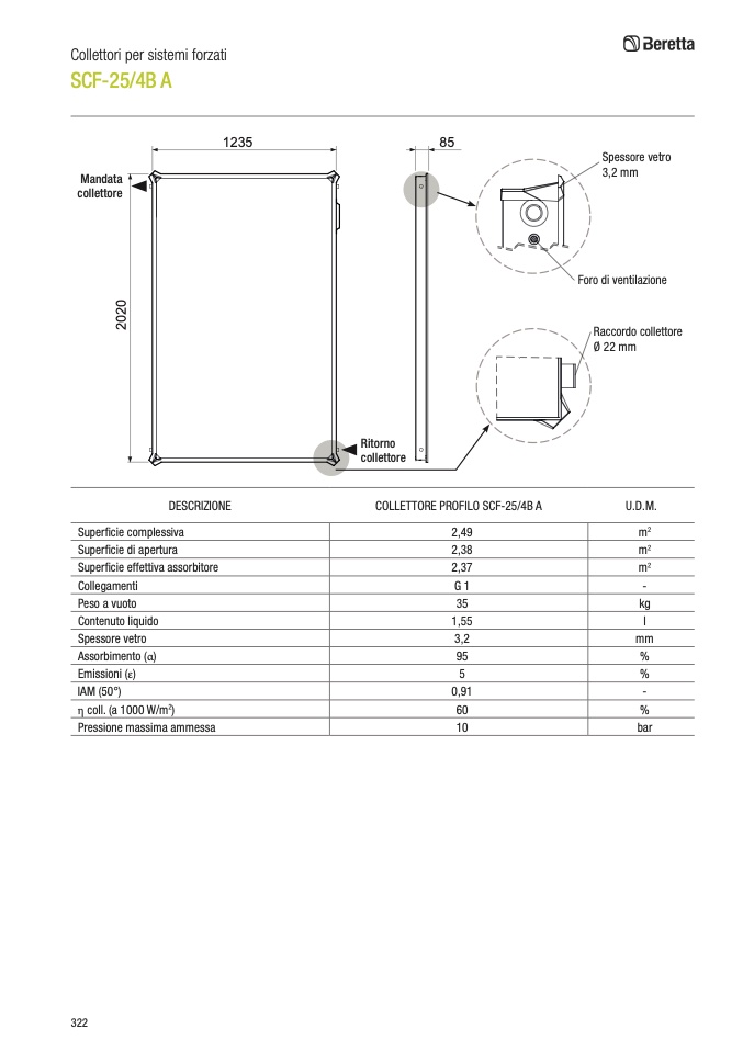
Mandata

collettore

1235

85

Spessore vetro

3,2 mm

Foro di ventilazione

Raccordo collettore

Ø 22 mm

U.D.M.

Superficie complessiva

Superficie di apertura

Superficie effettiva assorbitore

Collegamenti

Peso a vuoto

Contenuto liquido

Spessore vetro

Assorbimento (α)

Emissioni (ε)

IAM (50°)

η coll. (a 1000 W/m

2

)

Pressione massima ammessa

2,49

m

2

2,38

m

2

2,37

m

2

G 1

-

35

kg

1,55

l

3,2

mm

95

%

5

%

0,91

-

60

%

10

bar

322

DESCRIZIONE

COLLETTORE PROFILO SCF-25/4B A

Ritorno

collettore

2

0

2

0