DISEGNI TECNICI

grohe.it

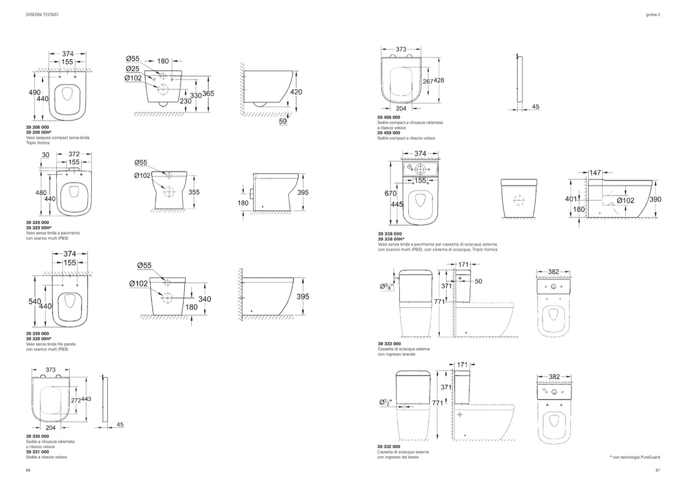
39 206 000

39 206 00H*

Vaso sospeso compact senza brida

Triplo Vortice

39 458 000

Sedile compact a chiusura rallentata

a rilascio veloce

39 459 000

Sedile compact a rilascio veloce

39 329 000

39 329 00H*

Vaso senza brida a pavimento

con scarico multi (P&S)

39 338 000

39 338 00H*

Vaso senza brida a pavimento per cassetta di sciacquo esterna

con scarico multi (P&S), con sistema di sciacquo, Triplo Vortice

39 339 000

39 339 00H*

Vaso senza brida filo parete

con scarico multi (P&S)

39 333 000

Cassetta di sciacquo esterna

con ingresso laterale

39 330 000

Sedile a chiusura rallentata

a rilascio veloce

39 331 000

Sedile a rilascio veloce

86

39 332 000

Cassetta di sciacquo esterna

con ingresso dal basso

* con tecnologia PureGuard

87