90
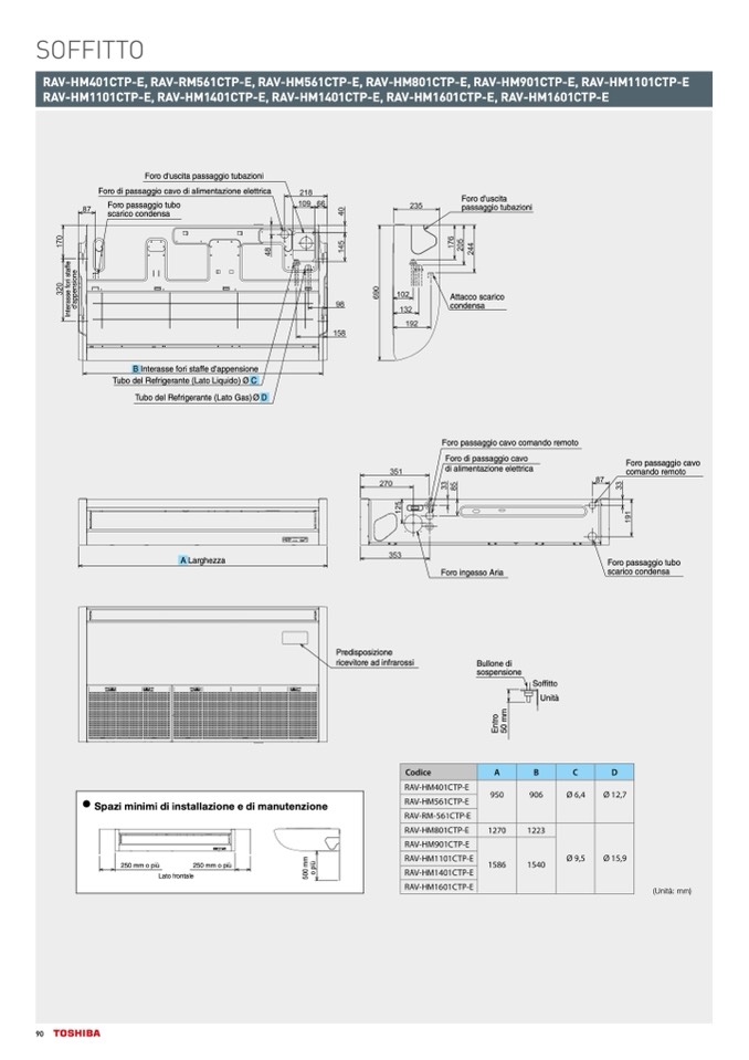
Foro d'uscita passaggio tubazioni
Foro di passaggio cavo di alimentazione elettrica
Foro passaggio tubo
scarico condensa
e
f
a
t
s
i
e
n
o
r
o
f
i
s
n
e
s
e
p
a
r
e
t
a
'
d
n
I
Foro d'uscita
passaggio tubazioni
Attacco scarico
condensa
Foro passaggio cavo comando remoto
Foro di passaggio cavo
di alimentazione elettrica
Foro ingesso Aria
Bullone di
sospensione
Soffitto
Unità
o
r
t
m
n
E
0
5
B Interasse fori staffe d'appensione
Tubo del Refrigerante (Lato Liquido) Ø C
Tubo del Refrigerante (Lato Gas) Ø D
A Larghezza
Foro passaggio cavo
comando remoto
Foro passaggio tubo
scarico condensa
250 mm o più
250 mm o più
Lato frontale
m
m
u
̀
i
p
0
5
o
Predisposizione
ricevitore ad infrarossi
(Unità: mm)