74
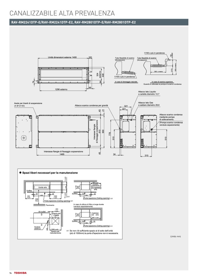
Asole per tiranti di sospensione
Attacco scarico condensa per gravità
321
221
5
4
1
2
Attacco lato Gas
a saldare diametro 28,6
Unità dimensioni esterne 1400
101
1/100 o più in pendenza
Tubo flessibile di scarico
Tubo flessibile di scarico
(Accessorio)
(Accessorio)
0
o
n
e
9
1
m
o
o
n
e
m
)
0
o
0
300 o meno
1
3
(
0
5
4
o
n
r
8
2
3
e
t
s
e
4
1/100 o più in pendenza
4
7
4
8
In caso di drenaggio naturale
In caso di scarico superiore
Quando è utilizzata la pompa di scarico condensa
95
1296 esterno
4
7
4
8
Attacco lato Liquido
a cartella diametro 12,7
95
1296 esterno
Interasse flangie di fissaggio sopsensione
1465
i
d
5
4
34
310
Soffitto
o più
200
Uscita aria
4
8
ingresso
aria
25
p
u
̀
i
Soffitto
25
25
1450
25
1000
0
o
1
950
o più
0
5
u
̀
i
p
7
Porta ispezione (Ceiling opening) 1
2
o
Porta ispezione (Ceiling opening)
1
Air outlet
Scatola
elettrica
200
o più
Check port
600
Pavimento
In caso di utilizzo di filtro a lunga durata
(venduto separatamente)
ingresso
aria
300 o più
Soffitto
25
25
950
Porta ispezione (Ceiling opening) 1
1
0
1000 o più
Spazio per
manutenzione
1 Se non c'è sufficiente spazio al di sotto dell'unità
(più di 1000mm) la porta d'ispezione non è necessaria.
u
̀
i
p
o
5
850 o più
d'aspirazione
Condotto
di sollevamento.
e
n
(Pompa scarico condensa
e
i
o
i
s
venduta separamente)
g
n
n
e
p
a
l
f
e
s
o
s
0
1
0
s
a
r
o
i
g
8
9
8
7
e
t
g
a
0
0
n
I
s
i
f
1
5
1
5
Attacco scarico condensa
mediante pompa
(Unità: mm)