CASSETTA COMPATTA

46

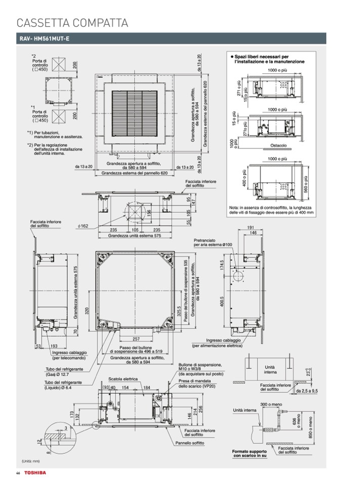
RAV- HM561MUT-E

Porta di

controllo

Porta di

controllo

Per tubazioni,

manutenzione e assitenza.

Per la regolazione

dell'altezza di installazione

dell'unità interna.

0

2

a

3

1

a

d

Facciata inferiore

del soffitto

Ingresso cablaggio

(per telecomando)

Tubo del refrigerante

(Gas) Ø 12.7

Tubo del refrigerante

(Liquido) Ø 6.4

(Unità: mm)

Passo del bullone

di sospensione da 496 a 519

Grandezza apertura a soffitto,

da 580 a 594

Scatola elettrica

Ingresso cablaggio

(per alimentazione elettrica)

Bullone di sospensione,

M10 o W3/8

(da acquistare sul posto)

Presa di mandata

dello scarico (VP20)

Facciata inferiore

del soffitto

da13a20

Spazi liberi necessari per

l’installazione e la manutenzione

1000 o più

0

2

u

̀

i

p

,

o

t

6

o

l

o

1

u

̀

i

t

i

f

l

e

n

7

2

p

o

o

s

a

4

n

a

p

5

1

a

r

9

5

l

e

u

t

a

d

1000 o più

r

e

0

a

n

u

̀

i

p

p

a

8

5

r

e

t

o

a

z

a

d

s

e

5

1

u

̀

i

p

e

d

a

z

o

1

n

a

e

d

7

2

r

G

n

a

r

0

u

̀

i

p

G

1

o

Ostacolo

0

2

a

1000 o più

Grandezza apertura a soffitto,

da 580 a 594

da13a20

3

1

Grandezza esterna del pannello 620

a

d

u

̀

i

p

o

0

u

̀

i

p

Facciata inferiore

del soffitto

0

4

o

0

6

5

Grandezza unità esterna 575

5

3

5

,

o

t

5

7

e

n

t

i

f

5

a

o

i

s

n

o

s

n

r

e

e

p

a

4

9

t

s

e

s

o

s

r

u

t

5

a

a

̀

t

i

i

d

r

e

p

0

8

n

u

e

n

o

l

a

5

a

a

z

l

u

b

z

e

d

z

e

d

l

e

d

d

n

n

a

r

o

s

a

r

G

s

a

G

P

Pannello soffitto

Pretranciato

per aria esterna ø100

Nota: in assenza di controsoffitto, la lunghezza

delle viti di fissaggio deve essere più di 400 mm

Unità

interna

Facciata inferiore

del soffitto

300 o meno

Unità interna

6

o

n

e

o

n

3

6

m

o

e

m

o

0

5

8

Facciata inferiore

del soffitto

Formato supporto

con scarico in su

da 2,5 a 9,5