SMART CASSETTE

RAV-GM801UT-E / RAV-HM801UT-E, RAV-GM1101UT-E / RAV-HM1101UT-E, RAV-GM1401UT-E / RAV-HM1401UT-E

42

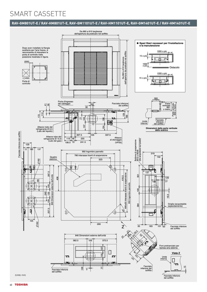
Dopo aver installato la flangia

ausiliaria per l'aria fresca, si

raccomanda di impostare la

porta di controllo nella

posizione mostrata in figura.

(200)

(

450)

Porta di

controllo

o

t

Spazi liberi necessari per l'installazione

e la manutenzione

1000 o più

15 o più

Da 860 a 910 larghezza

dell'apertura da praticare nel soffitto

o meno

300

Porta d'ingresso

1

6

l

del cablaggio

50

Facciata inferiore

Parte

e

4

3

a

o

del soffitto

verticale

30

661

t

c

i

n

e

o meno

r

e

m

2

9

v

e

t

r

o

0

5

2

7

1

1

5

2

1

9

8

a

P

8

7

0

1

6

5

1

1

Unità

Facciata

interna

inferiore

del soffitto

Attacco tubo del

1

0

7

3

4

refrigerante Ø 9.5

1

Dimensioni della parte verticale

(Lato del liquido)

dello scarico

o

t

i

f

o

397.5

105

337.5

l

)

s

Attacco tubo del

d

e

t

e

o

refrigerante Ø 15.9

119 46

255

Attacco

e

n

s

(Lato del gas)

di drenaggio

r

o

i

i

s

p

l

106.5

72

241.5

(VP25)

o

o

129

r

e

f

n

n

e

p

u

s

e

i

s

r

a

t

o

s

8

/

a

t

77

105 137

a

i

c

i

d

3

s

i

u

950 Ingombro pannello

a

F

n

o

o

c

a

c

e

W

q

319

780 Interasse tiranti di sospensione

Quadro

132

2

l

u

0

1

a

6

1

B

M

d

(

elettrico

323

(Unità: mm)

Facciata inferiore

del soffitto

2

9

7

2

1

Facciata

1

5

inferiore del

soffitto

Facciata inferiore

del soffitto

105

5

.

137

7

8

2

a

̀

t

i

5

e

n

o

i

1

5

n

8

.

6

s

3

129

0

8

u

'

l

e

0

4

1

4

n

e

p

s

105

77

5

d

e

n

r

o

s

i

d

o

l

e

0

1

e

t

s

i

t

n

n

a

5

0

5

e

i

n

o

a

r

i

t

p

o

r

0

1

4

2

3

1

i

s

n

e

s

b

m

5

.

e

m

i

a

r

e

t

o

g

n

I

6

1

5

0

1

D

0

4

n

I

0

2

0

5

9

4

8

±

0

8

Griglia (acquistabile

separatamente)

.

5

9

6

3

°

7

5

0

2

4

2

6

1

269

Z

35

183

101 30

Facciatainferiore

del soffitto

5

7

2

8

.

5

840 Dimensioni esterne dell'unità

1

4

6

3

2

6

362.5

105

372.5

7

3

1

5

0

1

7

8

5

5

1

1

Foro pretranciato per

ripresa aria esterna

Vista Z

Unità

interna

o

t

i

f

s

a

z

e

l

e

n

h

g

r

e

r

a

a

l

c

i

t

0

1

9

a

r

p

a

a

0

6

d

a

r

8

a

u

t

r

e

D

p

a

'

l

l

e

d

1000

o più

15 o più

Ostacolo

1000 o più