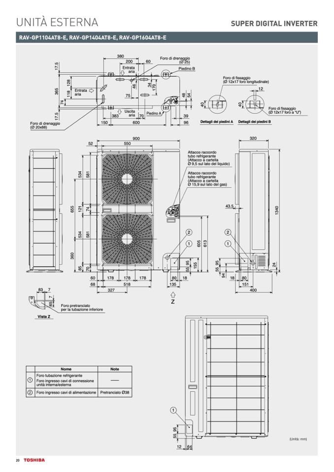
UNITÀ ESTERNA

RAV-GP1104AT8-E, RAV-GP1404AT8-E, RAV-GP1604AT8-E

SUPER DIGITAL INVERTER

20

5

.

7

1

380

200

Entrata

aria

60

Foro di drenaggio

(Ø 25)

Piedino B

Foro di fissaggio

8

(Ø 12x17 foro longitudinale)

2

1

6

4

4

3

0

7

5

1

Entrata

12

6

3

8

1

8

4

4

1

4

5

aria

75

7

0

4

0

4

Foro di fissaggio

5

Uscita

.

Piedino A

(Ø 12x17 foro a “U”)

383

aria 70

7

1

39

Foro di drenaggio

150

600

96

Dettagli dei piedini A

Dettagli dei piedini B

(Ø 20x88)

320

52

550

900

83 7

Vista Z

Foro tubazione refrigerante

Foro ingresso cavi di connessione

unità interna/esterna

4

3

5

1

8

5

Attacco raccordo

tubo refrigerante

(Attacco a cartella

Ø 9,5 sul lato del liquido)

Attacco raccordo

tubo refrigerante

(Attacco a cartella

Ø 15,9 sul lato del gas)

43.5

5

6

1

2

1

4

7

0

4

3

1

4

3

5

1

8

5

2

2

1

1

5

0

3

1

6

6

0

6

3

5

9

5

5

9

4

2

5

8

0

7

5

1

5

4

9

60

178

178

178

80 18

18 80

68

327

518

135

151

400

7

5

6

Z

Foro pretranciato

per la tubazione inferiore

Nome

Note

Foro ingresso cavi di alimentazione

Pretranciato Ø38

1

5

9

5

12

64

(Unità: mm)