UNITÀ ESTERNA

18

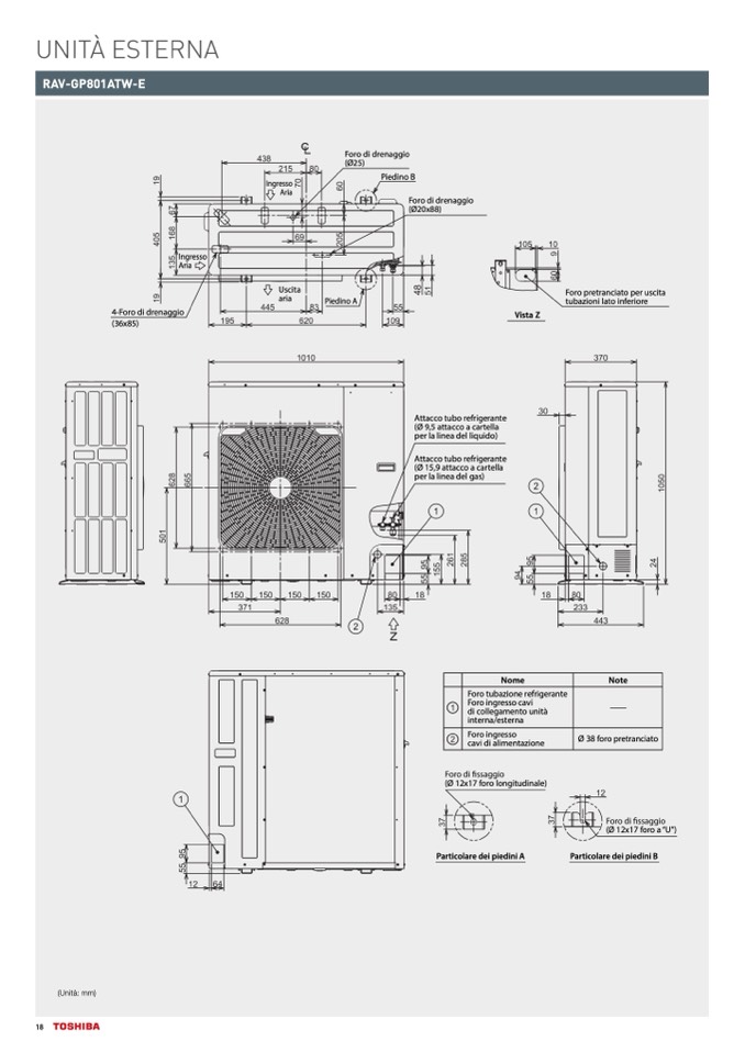
RAV-GP801ATW-E

(Unità: mm)

Ingresso

Aria

4-Foro di drenaggio

(36x85)

Piedino A

Foro pretranciato per uscita

tubazioni lato inferiore

Ingresso

Aria

Uscita

aria

Piedino B

Foro di drenaggio

(Ø20x88)

Foro di drenaggio

(Ø25)

Attacco tubo refrigerante

(Ø 9,5 attacco a cartella

per la linea del liquido)

Attacco tubo refrigerante

(Ø 15,9 attacco a cartella

per la linea del gas)

Nome

Foro tubazione refrigerante

Foro ingresso cavi

di collegamento unità

interna/esterna

Foro ingresso

cavi di alimentazione

(Ø 12x17 foro longitudinale)

Particolare dei piedini A

Note

Ø 38 foro pretranciato

(Ø 12x17 foro a “U”)

Particolare dei piedini B

Vista Z