12

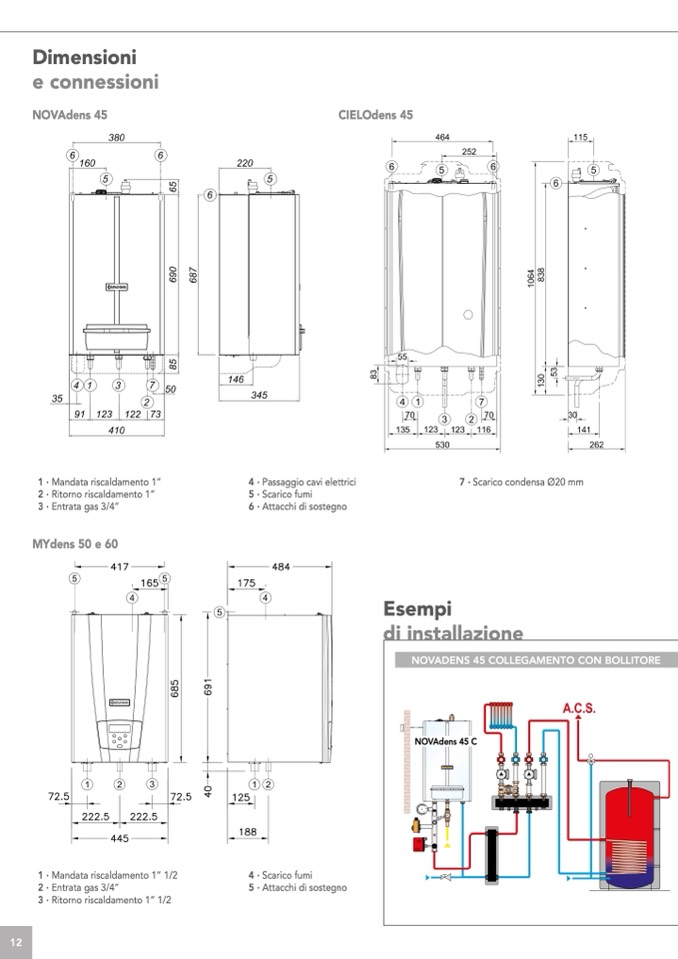
Dimensioni

e connessioni

NOVAdens 45

CIELOdens 45

1 · Mandata riscaldamento 1”

2 · Ritorno riscaldamento 1”

3 · Entrata gas 3/4”

MYdens 50 e 60

4 · Passaggio cavi elettrici

5 · Scarico fumi

6 · Attacchi di sostegno

7 · Scarico condensa Ø20 mm

di installazione

NOVADENS 45 COLLEGAMENTO CON BOLLITORE

NOVAdens 45 C

1 · Mandata riscaldamento 1” 1/2

2 · Entrata gas 3/4”

3 · Ritorno riscaldamento 1” 1/2

4 · Scarico fumi

5 · Attacchi di sostegno

Esempi