Istruzioni di montaggio forni compatti iQ700

46

min. 460 550

min. 20

19,5

405

455

442

407

max.

45

594

548

Spazio per

l'allacciamento

dell'apparecchio

320 x 115

Montaggio con un piano di cottura.

Dimensioni in mm

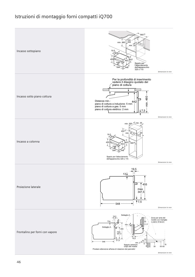
Per la profondità di inserimento

vedere il disegno quotato del

piano di cottura

Distanza min.:

piano di cottura a induzione: 5 mm

piano di cottura a gas: 5 mm

piano di cottura elettrico: 2 mm

19,5

405

455

594

max.

45

Spazio per l'allacciamento

dell'apparecchio 320 x 115

19,5

13

Dimensioni in mm

548

19,5

455

max.

347,5

7,5

Dettaglio A

min.2

0

455

max.

347,5

7,5

19,5

548

Prestare attenzione all'area di rotazione del pannello!

Zona per anta del

mobile con maniglia

o piano di lavoro

13

Dettaglio A

75

560+8

180

min.

442

7,5

min. 35

450+2

min. 35

60

442

407 560+8

548

Dimensioni in mm

min. 550

10

15

min.2

5

0

Spigolo anteriore

70

corpo del mobile

0

30

55 65

0

Dimensioni in mm

Dimensioni in mm

Incasso sottopiano

Incasso sotto piano cottura

Incasso a colonna

Proiezione laterale

Frontalino per forni con vapore

m

i

n

.

4

6

0