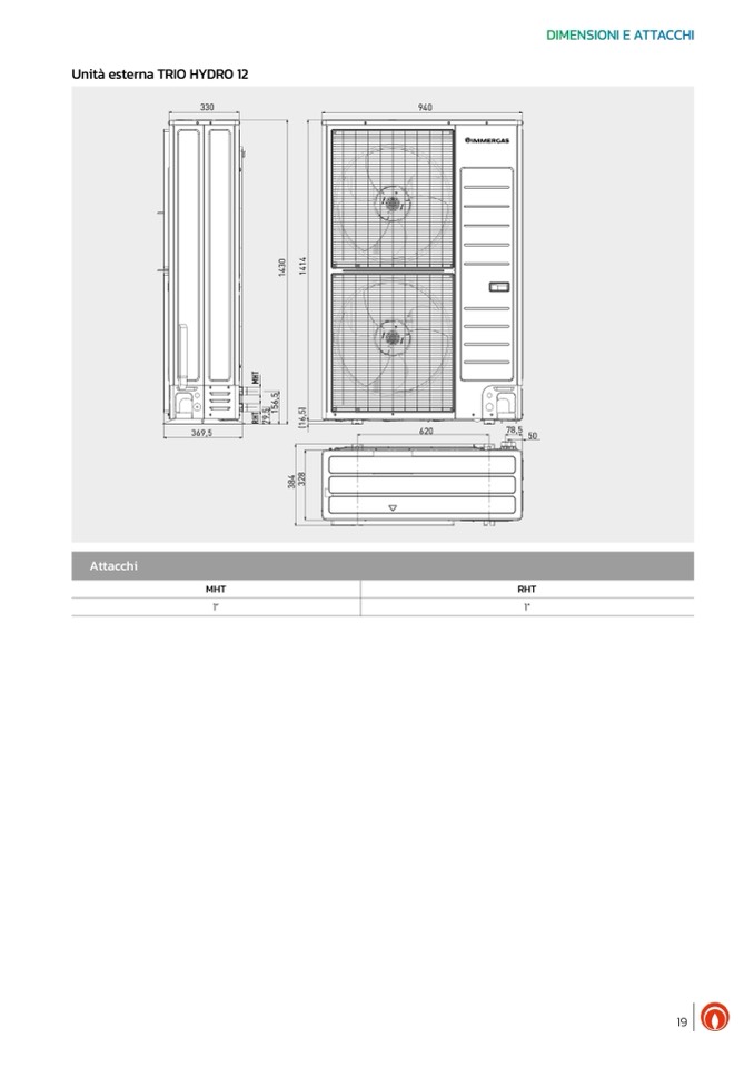
Unità esterna TRIO HYDRO 12

DIMENSIONI E ATTACCHI

330

940

620

78,5

50

R

H

T

M

H

T

7

9

,

5

1

5

6

,

5

1

4

3

0

369,5

3

8

4

3

2

8

(

1

6

,

5

)

1

4

1

4

Attacchi

MHT

RHT

1”

1”

19