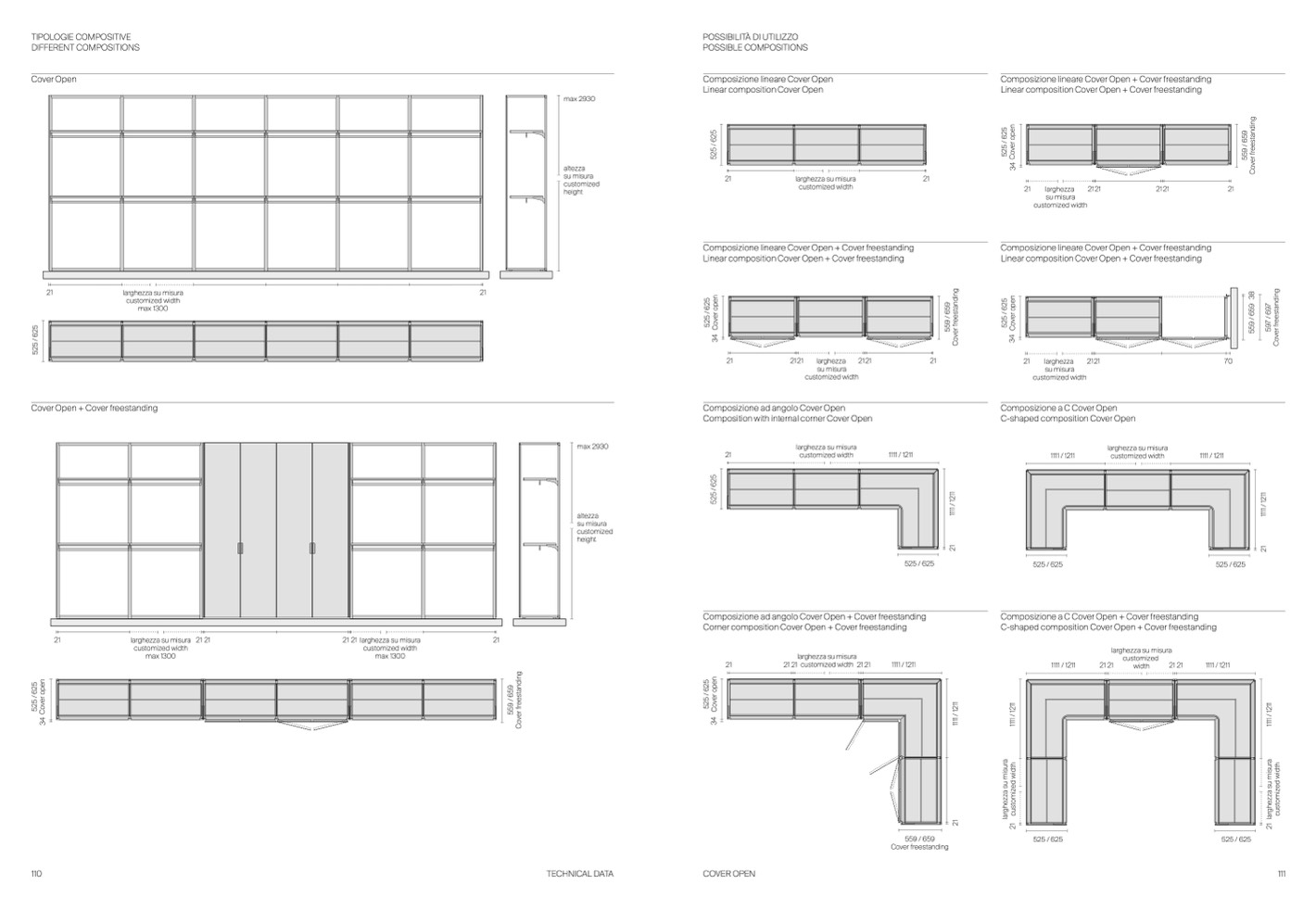
TIPOLOGIE COMPOSITIVE

DIFFERENT COMPOSITIONS

customized width

customized width

customized width

customized width

Cover Open

Composizione lineare Cover Open

Linear composition Cover Open

Composizione lineare Cover Open + Cover freestanding

Linear composition Cover Open + Cover freestanding

110

TECHNICAL DATA

COVER OPEN

1111 / 1211

1111 / 1211

1111 / 1211

1111 / 1211

111

21

21

larghezza su misura

21

21

21 larghezza su misura

1000 / 1100

1100

1000 / 1100

su mlaisrgurhaeszuzma sisurmaisura

1000 / 1100

Cover Open + Cover freestanding

996/1096

customizecduswtoidmthizedwidth 996/1096

Composizione ad angolo Cover Open

Composizione a C Cover Open

21

larghezza su misura

21 21

21 21 larghezza su misura

21

21

Corner composition Cover Open + Cover freestanding

525 / 625

larghezza su misura

larghezza su misura

21

larghezza su misura

21 21

21 21 larghezza su misura

larghezzasumisura

21

21

2121

la2r1g2h1ezzalargh2e1z2z1a

2121

21

21

21custloamr2gi1hzeczduzswatlaoidrmgthize2e1zd2za1width2121

customized width

70

70

21

1111 / 1211701111 / 1211 70

70

70

customized width

customized width

su misurasu misura

customizceudswtoidmthized width

customized width

su misurasu misura

customizceudswtoidmthized width

larghezza su misura

21

max 1300

max 1300

customized width

customized width

customized width

customized width

max 1300

max 1300

customized

customized

max 1300

max 1300

larghezza su misura

larghezza su misura

1111 / 1211

21 21

width

139

139

width

21 21

1111 / 1211

max 2930

max 2930

max 2930

max 2930

altezza

altezza

altezza

su misura

21

21

larghezzalasrughmeizszuarasu misura

customizceudswtoidmthized width

larghezzalsaurgmheiszuzrasu misura

21

21

altezza

su misura

customized

su misura

customized

height

21

21

height

height

max 2930

max 2930

21

21

21 21

21 21

larghezza

larghelazrzgahezz2a1s2u1 misura

21 21

1111 / 1211

21

21

larghezza

larghezza

21 21

21 21

larghezza su misura

70

1111 / 1211

1111 / 12

altezza

21

altezza

21

21

customized width

1111 / 1211

lalrtgehzezzazalasrughmeizszuarasu misura

su misura

customized

1111 / 1211

customizceudstwoimdtihzceudstomized1111 / 1211

su misura

customized

1111 / 1211 1111 / 121211 21

21 21

width

21 21

width

su misura

customized

customized

height

max 2930

sumisura

customized

customized

height

625 5m25ax/ 6292530

525 / 625525 / 625

height

height

height

max 2906

/

height

max 2930

21

21

larghezza su misura

larghezza su misura 21 21

21 21

21 21 larghezza su misura

21 21 larghezza su misura

21

21

21

21

larghezza su misura

customized width

21

21

21 21 customized width

21 21

1111 / 1211

POSSIBILITÀ DI UTILIZZO

max 1300

max 1300

max 1300

max 1300

POSSIBLE COMPOSITIONS

21

21

21

Composizione lineare Cover Open + Cover freestanding

21

21

21

customizecduwstiodmthized width

1111 / 1211

1111 / 1211

customizecduwstiodmthized width

21

21

21

altezza

customized width

1111 / 1211

1111 / 1211

21 21111 / 1211 1111 / 1211

525 / 625 525 / 625

525 / 625525 / 625

28

56

56

400

50

50

278

278

44

44

44

44

139

25

25

1111 / 1211

1111 / 1211

25

2

5

36

36

400 / 500

1111 / 1211

1111 / 1211

36

400 / 500

400 / 500

75

75

21

21

21

Composizione lineare Cover Open + Cover freestanding

customizecduwstiodmthized width

21

larg2h1ezza largh2e1z2z1a

21 21

21 21

21 21

21

21

LinearcompositionCoverOpen+Coverfreestanding

Linearcomposition

s

C

u

o

m

v

i

e

su

r

r

O

a

pen+Coverfreestanding

su misura

larghezzalasrughmeiszzuarasu misura

customizecduswtoidmthized width

21

21

customizecduwstiodmthized width

21 larghezza su misura

1000 / 1100

larghezza su misura

1000 / 1100

21

customized width

customized width

customized width

larghezzalasrughmeizszuarasu misura

21

larghezza

larghezza

21 21

21 21

21

1111 / 1211

70

2111211/ 1211

customizecduwstiodmthized width

21

211

2143

21

2121

la2r1g2h1ezzalargh2e51z62z1a

2121

21

21

21 21custolam2rg1iz2hce1eudzszwtaoidlmatrhigzeh2de1 2zwz1 aidth

su misurasu misura

1111 /211211

21

500

21

43

500

su misurasu misura

21

larg2h1ezzalargh2e1z2z1a

2121

su misurasu misura

500

56

500

21

996 / 1096

996 / 1096

customizecduswtoidmthizedwidth

Composition with internal corner Cover Open

C-shaped composition Cover Open

21

larghezza lsaurgmheiszuzra su misura

1111 / 1211

21

1111 / 1211

1111 / 1211

larghezza lsaurgmheiszuzra su misura

1111 / 1211

1111 / 1211

1111 / 1211

larghezza su misura

su misura

larghezza su misura

su misura

cusstuomiizsecuduraswtoidmthized width

1111 / 1211

customized width

customized width

525 / 625525 / 625

altezza

customized width

525 / 625525 / 625

1111 / 1211

525 / 625525 / 625

larghezza su misura

larghezza su misura

altezza

su misura

larghezza su misura

altezza1111 / 1211

customized width

su misura

2121scuumst2ois1mu2r1iazecduswtoidmthize2d12w1idth 2112111/1211 1111/h12e1ig1ht

altezza

su misura

customized

height

customized

max 2906

max 2930

larghezza lsaurgmheiszuzra su misura

2121custo2m12iz1ecduwstiodmthiz2e1d2w1idth211211/1211 11115/21521/1625

customizecdustomized

28

1111 / 1211

525 / 625

525 / 625

1111 / 1211

525 / 625

1111 / 1211

139525 / 625525 / 625

525 / 625525 / 625

525 / 625525 / 625

21

larghezza su misura

48

53

customized width

6

525/625

larghleazrgzaheszuzma sisumraisura

larghezza su misura

48

53

larghezza su misura 6

larghezza su misura

largchuesztozma sizuemd iwsuidrtah

customized width

max 646

larghezza su misura

customized width

max 646

larghezza su misura

21

21 21 cust2o1m2i1zecduswtoidmthize2d1 2w1idth 2112111 / 1211 1111 / 1211

21 21111 / 1211

525 / 625

525 / 625

C-shaped composition Cover Open + Cover freestanding

Composizione ad angolo Cover Open + Cover freestanding

width

21

21 21 customized width 21 21

1111 / 1211

417

40

40

417

1111 / 1211

40

40

278

21 21

21 21

996 / 1096

996 / 1096

500

139

139

996 / 1096

996 / 1096

500

996 / 1095659 / 659

490

490

larghezza su misura

larghezza su misura

400 / 500

l

a

r

g

h

e

z

z

a

s

u

m

i

s

u

r

a

c

u

s

t

o

m

i

z

e

d

w

i

d

t

h

400

500

278

525 /

625 525 / 625

525 / 625

28

1111 / 12211 21

customiczuesdtowmiditzhed

customized

525 / 625

525 / 625

Composizione a C Cover Open + Cover freestanding

149 559 / 659559 / 659

149

139

139

525 / 625525 / 625

139

139

139

139

Cover freeCsotvaenrdfirnegestanding

1100

1000 / 1100

21 21

21

21

43

43

166

56

43

500

43

500

166

500

56

500

996 / 1096

996 / 1096

159

159

500

500

500

40

40

400 / 500

400 / 500

559 / 659559 / 659

500

996 / 1096

525 / 652050525 / 625

996 / 1096

996 / 1096

996 / 1096

500

Cover9fr9e6eCs/ot1a0vne9dr6ifnregestanding

559 / 659559 / 659

996 / 1096

Cover freeCsotavendr finregestanding

500

330

330

269

269

Cover freestanding

180

180

400 / 500

400 / 500

70

70

490

490

996 / 1096

525 / 625370

525 / 625

370

525 / 625

525 / 625

559 / 659

Cover freestanding

300

300

21

21

21

21 21

larghezzalargh2e1z2z1a

21 21

21

21

lar2g1hezzalarghe21z2za1

su misurasu misura

customizceudswtoidmthized width

21 21

21 21

21 21

customized

21 21

customized width

larghezzalasrughmeizszuarasu misura

21 21

larg121h11e/z1z2a11la1r1g1h12/e11z2z11a1 cu2s1t2o1mizceudswtoidmthized width

su misurasu misura

customizecduwstiodmthized width

su misura

su misura

customized width

su m11is11u/ra1211

customized width

525

525 / 625525 / 625

larghezza su misura

customized width

1111 / 1211

525 / 625

2w1 2id1th

wi2d1th21

2112111 / 1211

1111 / 1211

1111 / 122111 21

21 21

wid2t1h21

525 / 625525 / 625

28

larghezzalsaurgmheiszuzrasu misura

customizecduswtoidmthized width

larghezza su misura

larghezzalasrughmeizszuarasu misura

su misura

customized

height

28

28

5

/

6

2

5

/

6

2

5

5

2

5

/

6

2

5

3

4

5

C

2

o

5

v

/

e

6

r

2

o

5

p

e

n

5

2

5

/

6

2

5

2

5

/

6

2

5

v

/

e

6

r

2

o

5

p

e

n

e

r

o

p

e

n

9

/

6

5

9

e

6

e

5

s

9

t

a

n

d

i

n

g

e

s

t

a

n

d

i

n

g

2

1

1

1

1

1

/

1

2

1

1

2

1

2

1

1

1

1

1

/

1

2

1

1

2

1

1

1

1

1

/

1

2

1

1

1

1

1

1

/

1

2

1

1

2

1

5

5

9

/

6

5

9

C

o

v

e

r

f

r

e

e

s

t

a

n

d

i

n

g

2

1

1

1

1

1

/

1

2

1

1

c

u

s

t

o

m

i

z

e

d

w

2

i

d

1

t

h

l

a

r

g

h

e

z

2

z

1

a

l

s

a

u

r

g

m

h

e

i

s

z

u

z

r

a

s

u

m

i

s

u

2

r

a

1

2

1

1

1

1

1

/

1

2

1

1

5

9

7

/

6

9

7

2

1

2

1

C

o

v

e

r

f

r

e

e

s

t

a

n

d

i

n

g

C

o

v

e

r

f

r

e

e

s

t

a

n

d

i

n

g

2

1

l

a

r

g

h

e

z

z

a

s

u

m

i

s

u

r

a

c

u

s

t

o

m

i

z

e

d

w

i

d

t

h

2

1

c

u

s

t

o

m

i

z

e

d

w

i

d

t

h

1

1

1

1

/

1

2

1

1

1

1

c

1

1

u

/

s

1

t

2

o

1

m

1

i

z

e

d

w

i

d

t

h

1

1

1

1

/

1

2

1

1

2

1

l

a

r

g

h

e

z

z

a

s

u

m

i

s

u

r

a

2

1

l

a

r

g

h

e

z

z

a

s

u

m

i

s

u

r

a

1

1

1

1

/

1

2

1

1

1

1

1

1

/

1

2

1

1

C

o

v

e

r

f

r

e

e

s

t

a

n

d

i

n

g

C

o

v

e

r

f

r

e

e

s

t

a

n

d

i

n

g

l

a

r

g

h

e

z

z

a

s

u

m

i

s

u

r

a

C

o

v

e

r

f

r

e

e

s

t

a

n

d

i

n

g

5

5

9

/

6

5

9

C

o

v

e

r

f

r

e

e

s

t

a

n

d

i

n

g

c

u

s

t

o

m

i

z

e

d

w

i

d

t

h

c

u

s

t

o

m

i

z

e

d

w

i

d

t

h

2

1

1

1

1

1

/

1

2

1

1

1

1

1

1

/

1

2

1

1

2

1

1

1

1

1

/

1

2

1

1

2

1

1

1

1

1

/

1

2

1

1

1

1

1

1

/

1

2

1

1

1

1

1

1

/

1

2

1

1

2

1

2

1

1

1

1

1

/

1

2

1

1

5

5

9

/

6

5

9

5

5

9

/

6

5

9

5

5

9

/

6

5

9

C

o

v

e

r

f

r

e

e

C

s

t

o

a

v

n

e

d

r

i

n

f

r

g

e

e

s

t

a

n

d

i

n

g

5

5

9

/

6

5

9

C

o

v

e

r

f

r

e

e

s

t

a

n

d

i

n

g

2

1

2

1

2

1

1

1

1

1

/

1

2

1

1

1

1

1

1

/

1

2

1

1

1

1

1

1

/

1

2

1

1

2

1

1

1

1

1

/

1

2

1

1

5

5

9

/

6

5

9

5

5

9

/

6

5

9

1

1

1

1

/

1

2

1

1

C

o

v

e

r

f

r

e

e

s

t

a

n

d

i

n

g

5

5

9

/

6

5

9

C

o

v

e

r

f

r

e

e

s

t

a

n

d

i

n

g

l

a

r

g

h

e

z

z

a

s

u

m

i

s

u

r

a

l

a

r

g

h

e

z

z

a

s

u

m

i

s

u

r

a

5

2

5

/

6

2

5

3

4

C

o

v

e

r

o

p

e

n

3

4

C

o

v

e

r

o

p

e

n

3

4

C

3

o

4

v

e

C

r

o

p

v

e

r

n

o

p

e

C

n

o

v

e

r

o

p

e

n

5

2

5

/

6

2

5

3

4

C

o

v

e

r

o

p

e

n

3

4

C

o

v

e

r

o

p

e

n

5

2

5

/

6

2

5

l

a

r

g

h

e

z

z

a

s

u

m

i

s

u

r

a

2

1

c

u

s

t

o

m

i

z

e

d

w

i

d

t

h

2

1

3

4

C

o

v

e

r

o

p

C

e

o

n

v

e

r

o

p

e

n

3

4

3

4

5

5

9

/

6

5

9

C

o

5

v

e

5

r

9

f

r

/

e

6

e

5

s

9

t

a

n

d

i

n

g

C

o

v

e

r

f

r

e

e

s

t

a

n

d

i

n

g

5

2

5

/

6

2

5

3

4

C

o

v

e

r

o

p

e

n

5

2

5

/

6

2

5

5

2

5

/

6

2

5

3

4

C

o

v

e

r

3

o

4

p

e

C

n

o

v

e

r

o

p

e

n

5

2

5

/

6

2

5

5

2

5

/

6

2

5

C

o

v

e

r

o

p

e

n

5

2

5

/

6

2

5

5

2

5

/

6

2

5

5

2

5

/

6

5

2

5

/

6

2

5

5

2

5

/

6

2

5

3

4

C

o

v

e

r

o

p

e

n

5

2

5

/

6

2

5

5

2

5

3

4

C

o

v

e

r

3

o

4

p

e

C

n

o

v

e

5

2

5

/

6

2

5

3

4

C

o

v

e

r

o

p

e

n

5

2

5

/

6

2

5

5

2

5

/

6

2

5

C

o

v

e

r

o

p

e

n

5

2

5

/

6

2

5

C

o

v

e

r

o

p

e

n

5

2

5

/

6

2

5

5

2

5

/

6

2

5

3

4

C

o

v

e

5

r

2

o

5

p

e

/

n

6

2

5

5

2

5

/

6

2

5

3

4

C

o

v

e

r

o

p

e

n

5

2

5

/

6

2

5

5

2

5

l

a

r

g

h

e

z

z

a

s

u

m

i

s

u

r

a

2

1

c

u

s

t

o

m

i

z

e

d

w

i

d

t

h

l

a

r

g

h

e

z

z

a

l

s

a

u

r

g

1

m

1

h

1

1

e

i

s

/

z

u

1

z

2

r

a

1

1

s

u

m

i

s

u

r

a

l

a

r

g

h

e

z

z

a

s

u

m

i

s

u

r

a

5

2

5

/

6

2

5

3

4

C

o

v

e

r

o

p

e

n

5

2

5

/

6

2

5

5

2

5

/

6

2

5

5

2

5

3

4

/

6

C

2

o

5

v

e

r

o

p

e

n

5

2

5

/

5

6

2

2

5

5

/

6

2

5

5

2

5

/

6

2

5

5

2

5

/

6

2

5

3

4

C

o

v

e

r

o

p

e

n

2

1

c

u

s

t

o

m

2

1

i

z

e

c

d

u

w

s

t

i

o

d

m

t

h

i

z

e

d

w

i

d

t

h

2

1

1

1

c

1

1

u

/

s

1

t

2

o

1

m

1

i

z

1

e

1

1

d

1

/

w

1

2

i

d

1

t

1

h

1

1

1

1

/

1

2

1

1

1

1

1

1

/

1

2

1

1

3

4

C

o

v

e

r

3

o

4

p

e

C

n

o

v

e

r

o

p

e

n

3

4

C

3

o

4

v

e

C

r

o

v

p

e

r

n

o

3

4

p

e

C

n

o

v

e

r

o

p

e

n

5

2

5

/

6

2

5

5

2

5

/

6

2

5

2

5

/

6

2

5

5

2

5

/

5

6

2

2

5

5

/

6

2

5

5

2

5

/

6

2

5

c

u

s

t

o

m

i

z

e

c

d

u

w

s

t

i

o

d

m

t

h

i

z

e

d

w

i

d

t

h

C

o

v

e

r

f

r

e

e

s

t

a

n

d

i

n

g

2

1

l

a

r

g

h

e

z

z

a

s

u

m

i

s

u

r

a

2

1

l

1

a

1

1

r

1

g

/

h

1

e

2

z

1

1

z

a

s

u

m

i

s

u

r

a

C

o

v

e

r

f

r

e

e

s

t

a

n

d

i

n

g

c

u

s

t

o

m

i

z

e

d

w

i

d

t

h

c

u

s

t

o

m

i

z

e

d

w

i

d

t

h

3

4

3

4

C

o

v

e

r

o

p

e

n

3

4

5

2

5

/

6

2

5

5

2

5

/

6

2

5

5

2

5

/

6

2

5

3

4

C

o

v

e

r

3

o

4

p

e

n

5

2

5

/

6

2

5

3

4

C

o

v

e

r

o

p

e

n

3

4

C

o

v

e

1

l

a

1

1

r

1

g

/

h

1

e

2

z

1

1

z

a

1

s

1

1

u

1

/

m

1

2

i

s

1

u

1

r

a

c

u

s

t

o

m

i

z

e

d

w

i

d

t

h

1

1

1

1

/

1

2

1

1

5

5

9

/

6

5

9

5

5

9

/

6

5

9

C

o

v

e

r

f

r

e

e

C

s

t

o

a

v

n

e

d

r

i

n

f

r

g

e

e

s

t

a

n

5

d

5

i

9

n

g

/

6

5

C

9

o

v

e

r

f

r

e

e

s

t

a

n

d

i

n

g

2

1

1

1

1

1

/

1

2

1

1

2

1

2

1

1

1

1

1

/

1

2

1

1

2

1

1

1

1

1

/

1

2

1

1

1

1

1

1

/

1

2

1

1

1

1

1

1

/

1

2

1

1

2

1

5

9

7

/

6

9

7

2

1

1

1

1

1

/

1

2

1

1

1

1

1

1

/

1

2

1

1

5

9

7

/

6

9

7

5

9

7

/

6

9

7

5

9

7

/

6

9

7

C

o

v

e

r

f

r

e

e

s

t

a

n

d

i

n

g

5

2

5

/

6

2

5

3

4

5

2

5

/

6

2

5

3

4

C

o

v

e

5

r

2

o

5

p

e

/

n

6

2

5

5

2

5

/

6

2

5

3

4

C

o

v

e

r

o

p

e

n

5

2

5

/

6

2

5

5

2

5

/

6

2

5

3

4

C

o

v

e

r

3

o

4

p

e

C

n

o

v

e

r

o

p

e

n

5

2

5

/

6

2

5

5

2

5

/

6

2

5

5

2

5

/

6

2

5

5

2

5

/

6

2

5

3

4

C

o

v

e

r

o

p

e

n

C

o

v

e

r

o

p

e

n

5

2

5

/

6

2

5

2

1

1

1

1

1

/

1

2

1

1

5

9

7

/

6

9

7

5

5

9

/

6

5

9

3

8

5

5

9

/

6

5

9

5

3

5

8

9

/

6

5

9

3

8

5

9

7

/

6

9

7

5

9

7

/

6

9

7

5

5

9

/

6

5

9

5

5

9

/

6

5

9

5

C

5

o

9

v

/

e

6

r

5

f

r

9

e

e

C

s

3

t

o

8

a

v

n

e

d

r

i

n

f

r

g

e

e

s

t

a

n

d

i

n

g

5

5

9

/

6

5

9

C

o

v

e

r

f

r

e

e

s

t

a

n

d

i

n

g

5

5

9

/

6

5

9

3

8

5

5

9

/

6

5

9

3

8

5

C

5

9

o

v

/

e

6

r

5

f

r

9

e

e

3

s

t

8

a

n

d

i

n

g

5

5

9

/

6

5

9

3

8

C

o

v

e

r

f

r

e

e

s

t

a

n

d

i

n

g

5

2

5

/

6

2

5

5

5

9

/

6

5

9

C

o

v

e

r

f

r

e

e

s

t

a

n

d

i

n

g

5

5

9

/

6

5

9

C

o

v

e

r

f

r

e

e

s

t

a

n

d

i

n

g

5

5

9

/

6

5

9

5

5

9

/

C

o

v

e

r

f

r

e

e

C

s

t

o

a

v

n

e

d

r

i

n

f

r

g

e

e

5

5

9

/

6

5

9

5

5

9

/

6

5

9

5

5

9

C

o

v

e

r

f

r

e

e

s

t

a

n

d

i

n

g

C

o

v

e

r

f

r

e

C

o

v

e

r

f

r

e

e

s

t

a

n

d

i

n

g