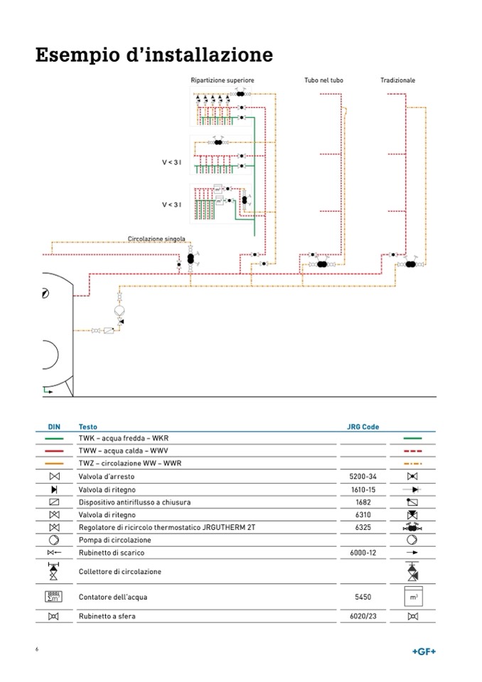
Esempio d’installazione

Ripartizione superiore

Tubo nel tubo

Tradizionale

m

3

m

3

V <3 l

V <3 l

Circolazione singola

DIN

Testo

JRG Code

5200-34

1610-15

1682

6310

6325

6000-12

5450

6020/23

TWK – acqua fredda – WKR

TWW – acqua calda – WWV

TWZ – circolazione WW – WWR

Valvola d’arresto

Valvola di ritegno

Dispositivo antiriflusso a chiusura

Valvola di ritegno

Regolatore di ricircolo thermostatico JRGUTHERM 2T

Pompa di circolazione

Rubinetto di scarico

Collettore di circolazione

Contatore dell’acqua

Rubinetto a sfera

m

3

6