Mi.Air Technology srl

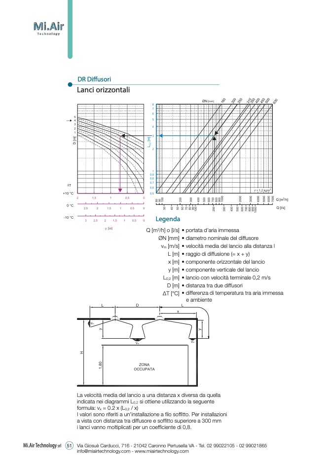
La velocità media del lancio a una distanza x diversa da quella

indicata nei diagrammi L

0,2

si ottiene utilizzando la seguente

formula: v

x

= 0.2 x (L

0,2

/ x)

I valori sono riferiti a un’installazione a filo soffitto. Per installazioni

a vista con distanza tra diffusore e soffitto superiore a 300 mm

i lanci vanno moltiplicati per un coefficiente di 0,8.

51 Via Giosuè Carducci, 716 - 21042 Caronno Pertusella VA - Tel. 02 99022105 - 02 99021865

info@miairtechnology.com - www.miairtechnology.com

DR Diffusori

Lanci orizzontali

Legenda

Q [m

3

/h] o [l/s]

ØN [mm]

v

m

[m/s]

L [m]

x [m]

y [m]

L

0,2

[m]

D [m]

ΔT [°C]

• portata d’aria immessa

• diametro nominale del diffusore

• velocità media del lancio alla distanza l

• raggio di diffusione (= x + y)

• componente orizzontale del lancio

• componente verticale del lancio

• lancio con velocità terminale 0,2 m/s

• distanza tra due diffusori

• differenza di temperatura tra aria immessa

e ambiente