Aura

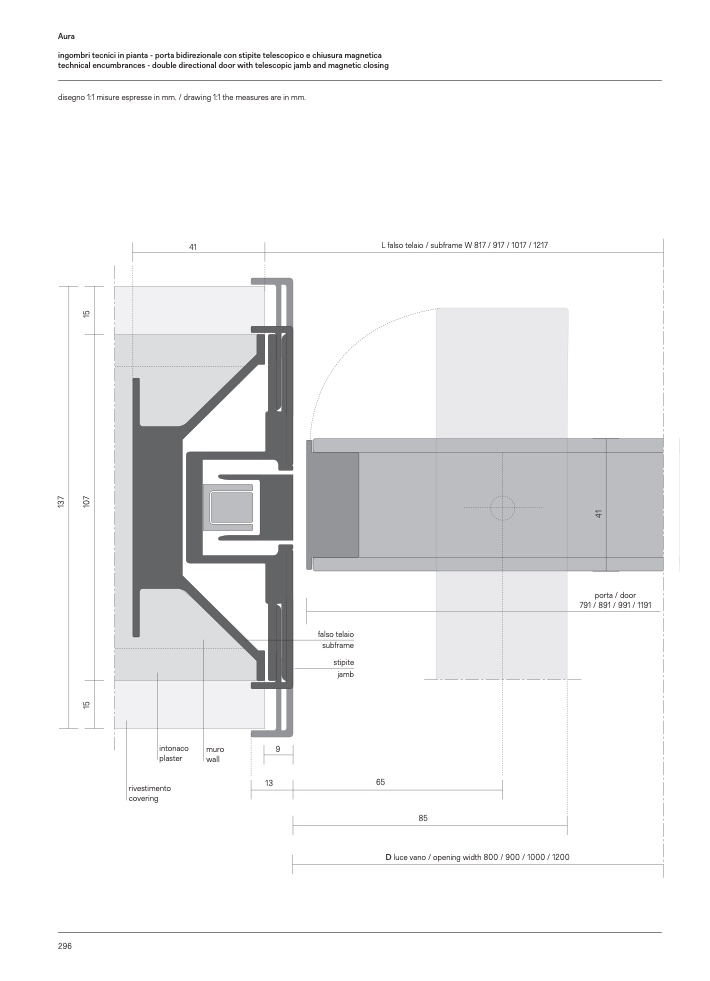
ingombri tecnici in pianta - porta bidirezionale con stipite telescopico e chiusura magnetica

technical encumbrances - double directional door with telescopic jamb and magnetic closing

disegno 1:1 misure espresse in mm. / drawing 1:1 the measures are in mm.

41

L falso telaio / subframe W 817 / 917 / 1017 / 1217

porta / door

791/891/991/1191

falso telaio

subframe

stipite

jamb

intonaco

plaster

rivestimento

covering

muro

wall

9

13

65

85

D luce vano / opening width 800 / 900 / 1000 / 1200

296

1

5

1

3

7

1

0

7

1

5

4

1