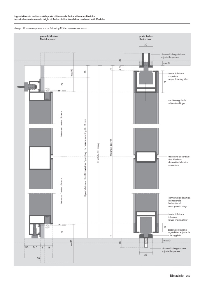
ingombri tecnici in altezza della porta bidirezionale Radius abbinata a Modulor

technical encumbrances in height of Radius bi-directional door combined with Modulor

disegno 1:2 misure espresse in mm. / drawing 1:2 the measures are in mm.

pannello Modulor

Modulor panel

porta Radius

Radius door

30

distanziali di regolazione

adjustable spacers

max 10

9,5

24,5

8

18

0

fascia di finitura

superiore

upper finishing filler

cardine regolabile

adjustable hinge

traversino decorativo

tipo Modulor

decorative Modulor

crosspiece

cerniera oleodinamica

bidirezionale

bidirectional

oleodynamic hinge

fascia di finitura

inferiore

lower finishing filler

piastra di rotazione

regolabile / adjustable

rotating plate

max 10

distanziali di regolazione

adjustable spacers

6

28

259

m

a

x

8

0

m

a

x

8

0

1

1

2

0

H

p

o

r

t

a

/

d

o

o

r

H

1

1

6

5

2

6

2

7

2

7

1

9

4

5

3

i

n

t

e

r

a

s

s

e

/

c

e

n

t

r

e

d

i

s

t

a

n

c

e

i

n

t

e

r

a

s

s

e

/

c

e

n

t

r

e

d

i

s

t

a

n

c

e

3

H

p

a

n

n

e

l

l

a

t

u

r

a

=

H

s

o

f

f

i

t

t

o

m

i

n

i

m

a

/

p

a

n

e

l

l

i

n

g

H

=

m

i

n

i

m

u

m

c

e

i

l

i

n

g

H

-

2

6

m

m

2

6

H

s

o

f

f

i

t

t

o

/

H

c

e

i

l

i

n

g