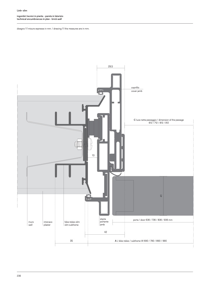
Link+ slim

ingombri tecnici in pianta - parete in laterizio

technical encumbrances in plan - brick wall

disegno 1:1 misure espresse in mm. / drawing 1:1 the measures are in mm.

29,5

coprifilo

cover jamb

C luce netta passaggio / dimension of the passage

612/712/812/912

10

falso telaio slim

slim subframe

35

ALfalsotelaio/subframeW690/790/890/990

236

muro

intonaco

wall

plaster

stipite

portante

jamb

42

porta/door636/736/836/936mm

4

1