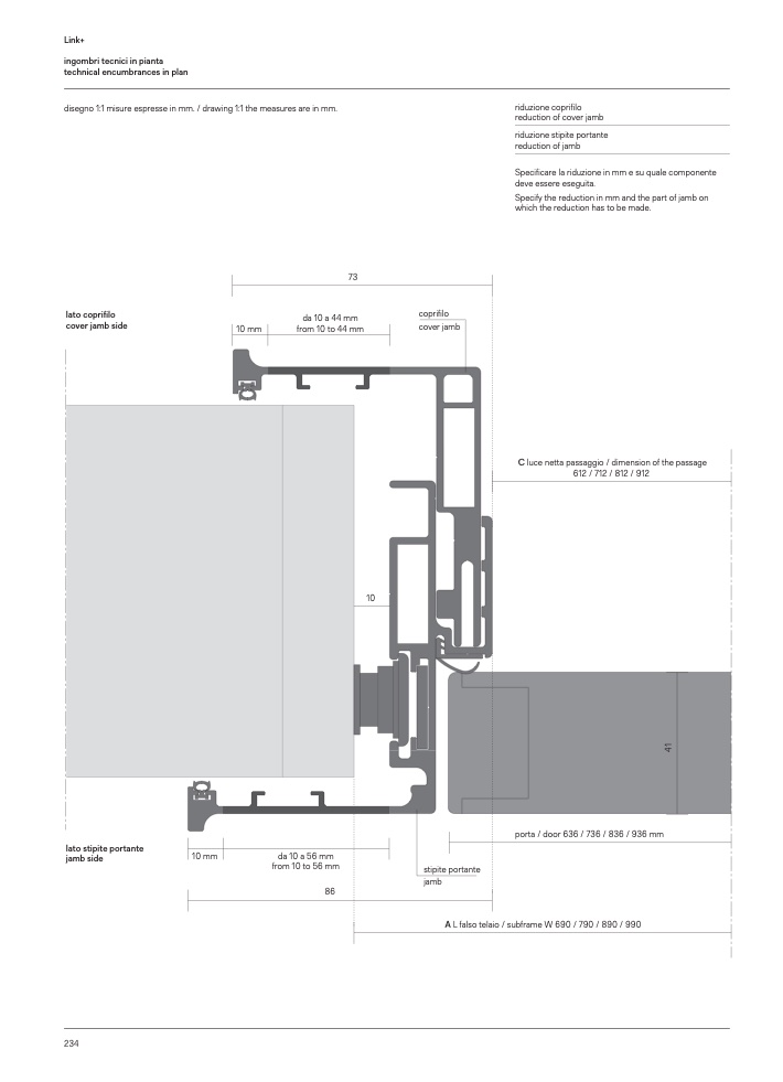
Link+

ingombri tecnici in pianta

technical encumbrances in plan

disegno 1:1 misure espresse in mm. / drawing 1:1 the measures are in mm.

riduzione coprifilo

reduction of cover jamb

riduzione stipite portante

reduction of jamb

Specificare la riduzione in mm e su quale componente

deve essere eseguita.

Specify the reduction in mm and the part of jamb on

which the reduction has to be made.

lato coprifilo

cover jamb side

10 mm

73

da 10 a 44 mm

from 10 to 44 mm

coprifilo

cover jamb

ALfalsotelaio/subframeW690/790/890/990

C luce netta passaggio / dimension of the passage

612/712/812/912

10

lato stipite portante

jamb side

10mm

da10a56mm

from 10 to 56 mm

86

stipite portante

jamb

porta/door636/736/836/936mm

234

4

1