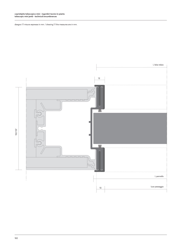
copristipite telescopico mini - ingombri tecnici in pianta

telescopic mini jamb - technical encumbrances

disegno 1:1 misure espresse in mm. / drawing 1:1 the measures are in mm.

13

L falso telaio

L pannello

160

10

luce passaggio

1

0

2

/

1

3

7