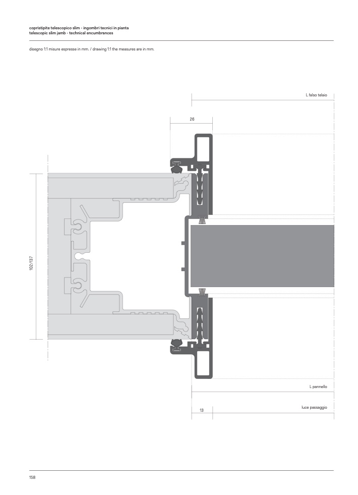
copristipite telescopico slim - ingombri tecnici in pianta

telescopic slim jamb - technical encumbrances

disegno 1:1 misure espresse in mm. / drawing 1:1 the measures are in mm.

L falso telaio

26

L pannello

158

13

luce passaggio

1

0

2

/

1

3

7